Postponed | Lot 31a

5-6 Manor Mews, Holt, Norfolk NR25 6AW

Postponed

  • Mews House
  • Tenure: See Legal Pack

Call the team on 01603 505 100 for more information

Auction Date

Thu 04/05/2023

Auction Time

11:00

Auction Venue

Livestream Auction

A rare development opportunity in the Georgian market town of Holt with planning permission to convert into separate dwellings for a freehold three bedroom cottage and one three bedroom apartment

Full planning permission has been granted to return the use of this antiques shop back into two separate residential dwellings in the town centre. One Freehold, two-storey traditional Norfolk flint three-bedroom cottage and one leasehold three-bedroom first floor apartment. The property is situated just off the vibrant High Street and would make an ideal investment as a holiday let/second home or as a main residence.

Tenure

See Legal Pack

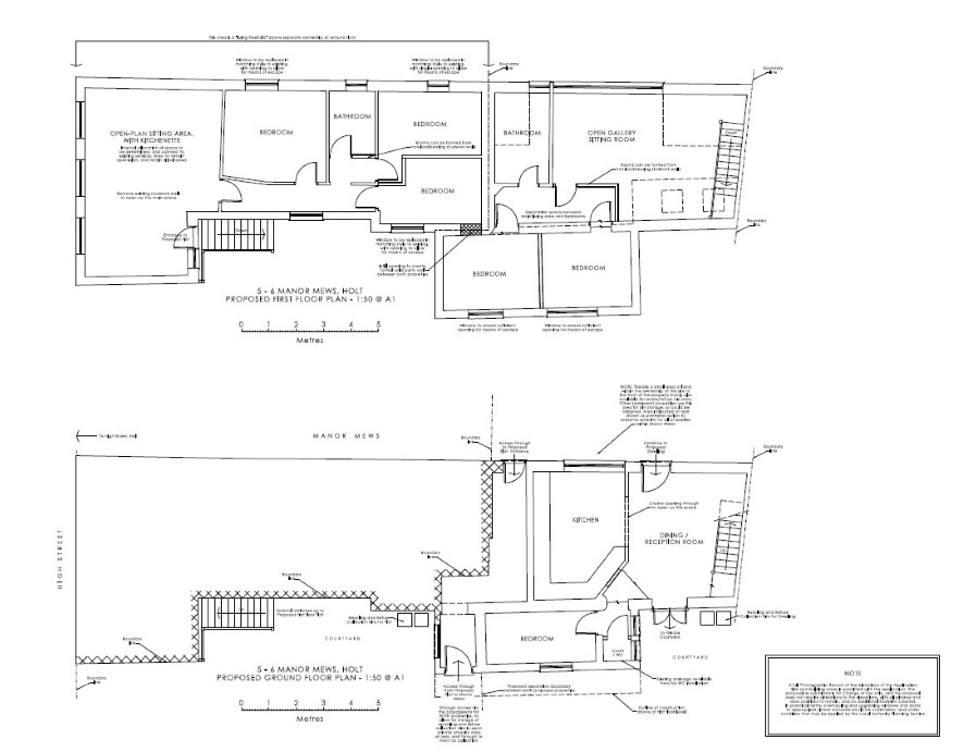
PROPOSED ACCOMMODATION

An exciting residential conversion opportunity in a charming courtyard off the High Street

Cottage (FREEHOLD)

Ground Floor: Open Plan kitchen/diner, bedroom, and separate cloakroom First Floor: Open gallery sitting room with vaulted ceiling, two bedrooms and main bathroom Outside: Courtyard garden.

First Floor Apartment (LEASEHOLD)

Open Plan kitchen/diner and sitting room, three bedrooms and main bathroom. Outside: Courtyard Garden.

Planning

Full planning permission was been granted on 19/7/22 to return the use of this former antiques shop back to residential dwellings, and both would have a wealth of charming features throughout which could readily be retained and restored. Each property would also benefit from its own private low maintenance courtyard to the rear. These could have fantastic holiday let or second home potential whilst also suiting an owner occupier looking for a main residence in a central location. Further details can be found on the North Norfolk District Council planning portal under reference PF/22/0222.

Lease Details

Length of lease: 999 years from 1st February 1991 (967 years remaining) Annual ground rent amount: To be advised Ground rent review period: To be advised Annual service charge amount: To be advised Service charge review period: To be advised

Location

The renowned Georgian market town of Holt lies 23 miles north of Norwich city centre and just 4 miles to the nearest beach at Weybourne and has a strong sense of North Norfolk community. The town is home to many art galleries, antique and book shops, a number of respected places to eat are located along the high street, and its department store and food hall, Bakers and Larners, a local landmark which has been run by the same family since 1770. The 'Love Holt' initiative which flies the flag for the independent shops adds vibrancy to the much-loved town centre that also includes a traditional butcher, fishmonger and greengrocer and Byford’s deli and café. Throughout the year, there are numerous local events including a summer Holt Festival and 1940s Weekend as well as the 'Poppy Line' heritage railway that runs the 5 and a half miles between Holt and Sheringham.

Viewing

Individual viewings are being arranged and the next are on Monday 24 and Thursday 27 April. APPOINTMENT ESSENTIAL - please call the Norwich office to arrange the next available slot.

Energy Efficiency Rating (EPC)

Current Rating E

Services

Interested parties are requested to make their own enquiries to the relevant authorities as to the availability of services.

Local Authority

North Norfolk District Council

Solicitors

Hayes and Storr (Sheringham), Ref: Michael Wakeman, Tel: 01263 820582

Important Notice to Prospective Buyers:

We draw your attention to the Special Conditions of Sale within the Legal Pack, referring to other charges in addition to the purchase price which may become payable. Such costs may include Search Fees, reimbursement of Sellers costs and Legal Fees, and Transfer Fees amongst others.

Additional Fees

Buyer's Premium - £600 inc VAT payable on exchange of contracts.

Administration Charge - 0.3% inc VAT of the purchase price, subject to a minimum of £1200 inc VAT, payable on exchange of contracts.

Disbursements - Please see the legal pack for any disbursements listed that may become payable by the purchaser on completion.

View Larger Map

Disclaimer: The map preview provided above is for general guidance only and may not accurately reflect the exact location or surrounding buildings. Prospective buyers and interested parties are strongly advised to independently verify the precise location and surroundings before bidding.