Sold Prior | Lot 34

110-111 Wellesley Road, Great Yarmouth, Norfolk NR30 2AR

Sold Prior

  • Guest House
  • 17 Bedrooms
  • Tenure: Freehold

Call the team on 01603 505 100 for more information

Auction Date

Thu 04/05/2023

Auction Time

11:00

Auction Venue

Livestream Auction

Substantial 17 bedroom guest house situated in the well known area for holiday makers visiting the popular seaside resort of Great Yarmouth

Rhonadean has been a family run guest house business for a number of years and more recently has been rented on a room only basis, however the property has no HMO licence. The property is tired and commencement for refurbishment has started although the project has got too large for the current owners so they have decided to sell. The vast property offers 18 bedrooms most with own suite although decoration is needed to all rooms. This character building nestled in to the tourist area of Great Yarmouth would make an ideal hotel for those with the vision to upgrade this substantial property.

Tenure

Freehold

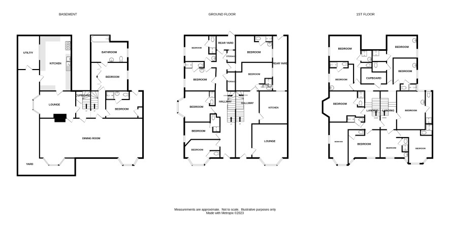
Basement

Private accommodation offering sitting room, kitchen, two bedrooms and bathroom along with large dining room for guests

Ground floor

Formerly two properties there are two hallways both offering stairs to first floor, seven bedrooms all with ensuite facilites, drawing room and kitchen

First floor

Ten bedrooms all with ensuite facilities

Outside

Rear yard

Council Tax Band

D

Viewings

Open viewings have been arranged and the next are on Monday 17 and Tuesday 18 April. To book an appointment please call the Norwich office.

Energy Efficiency Rating (EPC)

Current Rating C

Services

Interested parties are requested to make their own enquiries to the relevant authorities as to the availability of services.

Local Authority

Great Yarmouth Borough Council

Solicitors

Ward Gethin Archer (Dereham), Ref: Tracy Guest, Tel: 01362 852918

Important Notice to Prospective Buyers:

We draw your attention to the Special Conditions of Sale within the Legal Pack, referring to other charges in addition to the purchase price which may become payable. Such costs may include Search Fees, reimbursement of Sellers costs and Legal Fees, and Transfer Fees amongst others.

Additional Fees

Buyer's Premium - £960 inc VAT payable on exchange of contracts.

Administration Charge - 0.3% inc VAT of the purchase price, subject to a minimum of £1200 inc VAT, payable on exchange of contracts.

Disbursements - Please see the legal pack for any disbursements listed that may become payable by the purchaser on completion.

View Larger Map

Disclaimer: The map preview provided above is for general guidance only and may not accurately reflect the exact location or surrounding buildings. Prospective buyers and interested parties are strongly advised to independently verify the precise location and surroundings before bidding.