Sold Prior | Lot 48

24-26 High Street, Stalham, Norwich, Norfolk NR12 9AN

Sold Prior

  • Mixed Use
  • Tenure: Freehold

Call the team on 01603 505 100 for more information

Auction Date

Wed 14/06/2023

Auction Time

11:00

Auction Venue

Livestream Auction

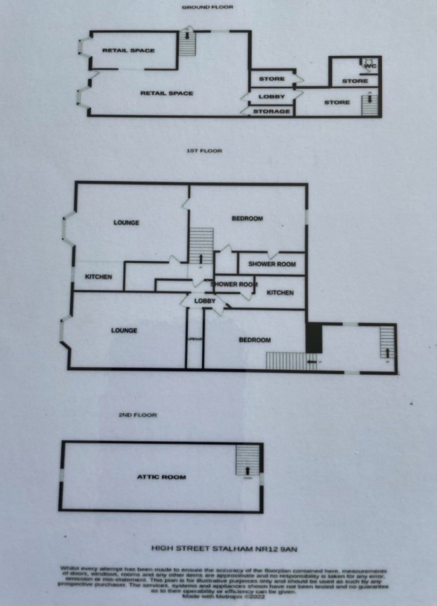
Substantial mixed use property comprising a ground floor shop and two self contained flats above

This mixed use property is situated in the heart of the high street. It comprises of a large ground floor retail unit and two self contained one bedroom flats on the first floor accessed from Moore's Yard to the side. The long established owner run pet and fishing tackle shop trades as Broadland Angling and due to retirement will be sold with vacant possession. The property requires improvement and offers redevlopment potential. According to the valuation office website the shop has an area of 174.7 sq/m and a rateable value of £12,250 with effect from 1st April 2023.

Tenure

Freehold

Shop

Two double bay windows to the front, entrance door, store room and lobby to back store, two storage rooms, lobby, further storage space.

Flat 1

Louge, kitchen, bedroom with en suite shower

Flat 2

Lounge, kitchen, bedroom, shower room

Outside

Rear yard space

Viewings

Open viewings have been arranged and the next are on Friday 9 June. To book an appointment please call the Norwich office.

Energy Efficiency Rating (EPC)

Current Rating C

Services

Interested parties are requested to make their own enquiries to the relevant authorities as to the availability of services.

Local Authority

North Norfolk District Council

Solicitors

Capron and Helliwell (Stalham), Ref: Rachel Appleton, Tel: 01692 581231

Important Notice to Prospective Buyers:

We draw your attention to the Special Conditions of Sale within the Legal Pack, referring to other charges in addition to the purchase price which may become payable. Such costs may include Search Fees, reimbursement of Sellers costs and Legal Fees, and Transfer Fees amongst others.

Additional Fees

Administration Charge - 0.3% inc VAT of the purchase price, subject to a minimum of £1200 inc VAT, payable on exchange of contracts.

Disbursements - Please see the legal pack for any disbursements listed that may become payable by the purchaser on completion.

View Larger Map

Disclaimer: The map preview provided above is for general guidance only and may not accurately reflect the exact location or surrounding buildings. Prospective buyers and interested parties are strongly advised to independently verify the precise location and surroundings before bidding.