For Sale By Auction | 11:00, 14 June 2023 | Lot 47

Shop & Land, Ebridge Mill, Happisburgh Road, White Horse Common, North Walsham, Norfolk NR28 9NG

Sold £300,000

  • Workshop & Retail space
  • Tenure: Freehold

Call the team on 01603 505 100 for more information

Auction Date

Wed 14/06/2023

Auction Time

11:00

Auction Venue

Livestream Auction

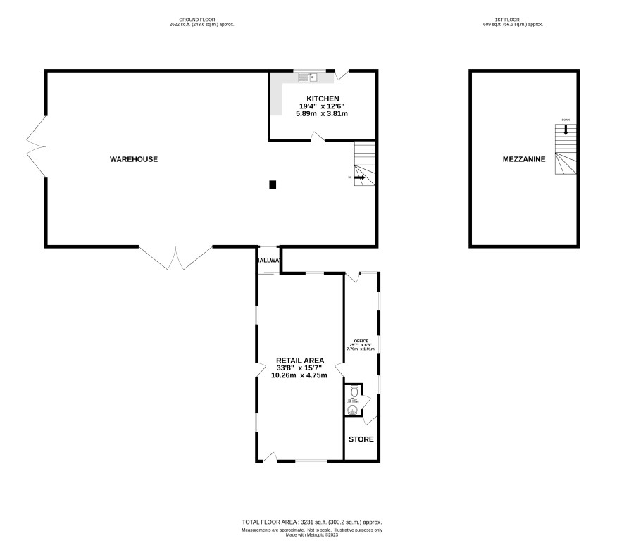
Retail shop and store measuring 396 sq/m situated in 2.8acres (stms) on the edge of the North Walsham and Dilham Canal

This unique site is the former weighbridge for Ebridge Mill. Occupying a site of 2.8 acres of land (stms), this large retail shop and store measuring 396 sq/m has many possibilities. Approached via a driveway off the main road, the shop has retail use and large storage capacity to the rear. It would make an ideal farm shop or equestrian facility. However, development potential to holiday lodges or residential, subject to necessary planning, could be an option. There is three phase electricity supply at the property. The land also adjoins the Dilham Canal making a perfect retreat. According to the valuation office website, the property extends to 396 sq/m and has a rateable value of £13,000 pa with effect from 1st April 2023. Rateable value on the land is £1,700 pa and we are advised that an application to have this removed has been applied for.

Tenure

Freehold

Shop

Retail shop and store with kitchen and mezzanine floor, office and separate w.c.

Outside

Land adjoining the North Walsham and Dilham Canal measuring 2.8acres (stms)

Viewings

Viewings are being arranged and the next opportunity to view is Wednesday 31st May. Please contact the Norwich office to book a slot.

Services

Interested parties are requested to make their own enquiries to the relevant authorities as to the availability of services.

Local Authority

North Norfolk District Council

Solicitors

Ashfords LLP (Bristol), Ref: Andrew Worley, Tel: 0117 321 8089

Important Notice to Prospective Buyers:

We draw your attention to the Special Conditions of Sale within the Legal Pack, referring to other charges in addition to the purchase price which may become payable. Such costs may include Search Fees, reimbursement of Sellers costs and Legal Fees, and Transfer Fees amongst others.

Additional Fees

Buyer's Premium - £960 inc VAT payable on exchange of contracts.

Administration Charge - 0.3% inc VAT of the purchase price, subject to a minimum of £1200 inc VAT, payable on exchange of contracts.

Disbursements - Please see the legal pack for any disbursements listed that may become payable by the purchaser on completion.

View Larger Map

Disclaimer: The map preview provided above is for general guidance only and may not accurately reflect the exact location or surrounding buildings. Prospective buyers and interested parties are strongly advised to independently verify the precise location and surroundings before bidding.