For Sale By Auction | 11:00, 13 September 2023 | Lot 73

16 Rushbrook Mill, Paper Mill Lane, Bramford, Ipswich, Suffolk IP8 4BF

Sold £55,000

  • Flat
  • 1 Bedroom

Call the team on 01473 558 888 for more information

Auction Date

Wed 13/09/2023

Auction Time

11:00

Auction Venue

Livestream Auction

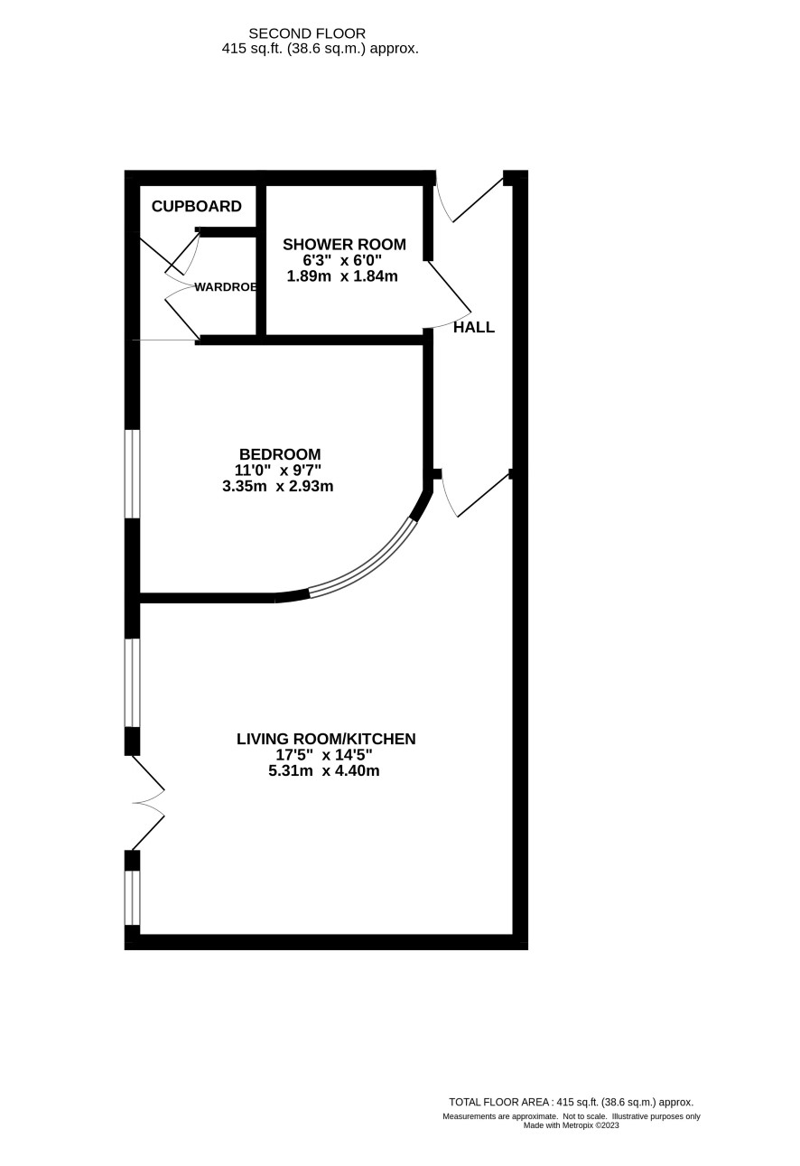
A second floor flat with lovely river views

Situated some three miles to the west of Ipswich is this second floor flat forming part of a converted mill and with views along the River Gipping and surrounding countryside. The property offers an open plan living room/kitchen with a Juliet Balcony, a double bedroom and has the benefit of allocated parking. Offered for sale with vacant possession we believe this is an excellent buy-to-let opportunity with a strong potential yield.

Lease details

Lease: 125 years from 2006 (108 years unexpired) Annual Service Charge: £1,440.00 Annual Ground Rent: £400.00

Council tax band

A

Energy Efficiency Rating (EPC)

Current Rating C

Services

Interested parties are requested to make their own enquiries to the relevant authorities as to the availability of services.

Local Authority

Mid Suffolk District Council

Solicitors

Fairhurst Menuhin & Co, Ref: Sarah-Jane Money, Tel: 01787 827583

Important Notice to Prospective Buyers:

We draw your attention to the Special Conditions of Sale within the Legal Pack, referring to other charges in addition to the purchase price which may become payable. Such costs may include Search Fees, reimbursement of Sellers costs and Legal Fees, and Transfer Fees amongst others.

Additional Fees

Buyer's Premium - £900 inc VAT payable on exchange of contracts.

Administration Charge - 0.3% inc VAT of the purchase price, subject to a minimum of £1200 inc VAT, payable on exchange of contracts.

Disbursements - Please see the legal pack for any disbursements listed that may become payable by the purchaser on completion.

View Larger Map

Disclaimer: The map preview provided above is for general guidance only and may not accurately reflect the exact location or surrounding buildings. Prospective buyers and interested parties are strongly advised to independently verify the precise location and surroundings before bidding.