For Sale By Auction | 11:00, 13 September 2023 | Lot 74

54 St. Matthews Street, Ipswich IP1 3EP

Sold After

  • Shop
  • Tenure: Freehold

Call the team on 01473 558 888 for more information

Auction Date

Wed 13/09/2023

Auction Time

11:00

Auction Venue

Livestream Auction

A well maintained commercial premises on the edge of the town centre.

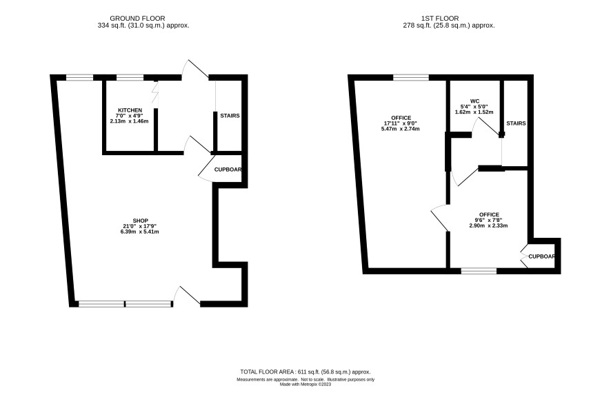
This premises is a two storey mid-terraced premises with a glazed frontage, rear access and is situated along a busy parade just to the west of the town centre. The accommodation on the ground floor comprises an open plan shop area with a separate kitchen and on the first floor are two offices and a WC. The property has previously been used as a reading room but it is considered there is scope for alternative use, subject to Planning Permission.

Tenure

Freehold

Energy Efficiency Rating (EPC)

Current Rating C

Services

Interested parties are requested to make their own enquiries to the relevant authorities as to the availability of services.

Local Authority

Ipswich Borough Council

Solicitors

Gotelee Solicitors (Ipswich), Ref: Claire Barritt, Tel: 01473 826312

Important Notice to Prospective Buyers:

We draw your attention to the Special Conditions of Sale within the Legal Pack, referring to other charges in addition to the purchase price which may become payable. Such costs may include Search Fees, reimbursement of Sellers costs and Legal Fees, and Transfer Fees amongst others.

Additional Fees

Buyer's Premium - £900 inc VAT payable on exchange of contracts.

Administration Charge - 0.3% inc VAT of the purchase price, subject to a minimum of £1200 inc VAT, payable on exchange of contracts.

Disbursements - Please see the legal pack for any disbursements listed that may become payable by the purchaser on completion.

View Larger Map

Disclaimer: The map preview provided above is for general guidance only and may not accurately reflect the exact location or surrounding buildings. Prospective buyers and interested parties are strongly advised to independently verify the precise location and surroundings before bidding.