Withdrawn | Lot 42

1 Long Lane, Southrepps, Norwich, Norfolk NR11 8NL

Withdrawn

  • Semi-Detached House
  • 3 Bedrooms
  • Tenure: Freehold

Call the team on 01603 505 100 for more information

Auction Date

Wed 13/09/2023

Auction Time

11:00

Auction Venue

Livestream Auction

A three bedroom semi-detached house requiring modernisation with single garage en-bloc.

This three bedroom semi-detached property is situated within the village of Southrepps, located between Cromer and North Walsham. The property has been let over the years and is now vacant offering potential for both the owner occupier or investor. Southrepps has a convenience store with post office and excellent pub with restaurant. Gunton train station is under two miles with Suffield Arms on its doorstep.

Tenure

Freehold

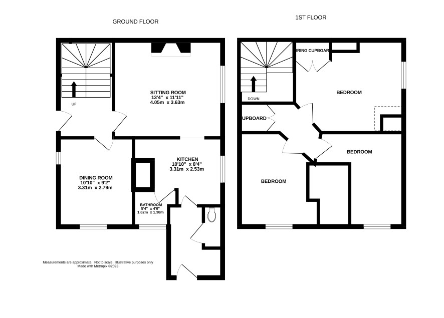
Ground Floor

Entrance Hall, sitting room, dining room, kitchen, bathroom

First Floor

Three bedrooms off landing

Outside

Front garden, side/rear garden with timber shed and workshop. Courtesy door into garage

Council Tax

B

Agents Note

The property is subject to a section 157 of the Housing Act 1985 restriction and therefore the purchaser must have lived in Norfolk or worked in Norfolk for at least three years at the date of purchase. The same applies to letting the property the prospective tenant must have lived or worked in Norfolk for three years at the tenancy start date.

Viewings

Open Viewing has been scheduled for Thursday 31 August and Wednesday 6th September. BOOKING AN APPOINTMENT IS ESSENTIAL. Please contact the Norwich office.

Energy Efficiency Rating (EPC)

Current Rating F

Services

Interested parties are requested to make their own enquiries to the relevant authorities as to the availability of services.

Local Authority

North Norfolk District Council

Solicitors

Nicholsons Solicitors, Ref: Hollie Laird, Tel: 01603 558709

Important Notice to Prospective Buyers:

We draw your attention to the Special Conditions of Sale within the Legal Pack, referring to other charges in addition to the purchase price which may become payable. Such costs may include Search Fees, reimbursement of Sellers costs and Legal Fees, and Transfer Fees amongst others.

Additional Fees

Buyer's Premium - £600 inc VAT payable on exchange of contracts.

Administration Charge - 0.3% inc VAT of the purchase price, subject to a minimum of £1200 inc VAT, payable on exchange of contracts.

Disbursements - Please see the legal pack for any disbursements listed that may become payable by the purchaser on completion.

View Larger Map

Disclaimer: The map preview provided above is for general guidance only and may not accurately reflect the exact location or surrounding buildings. Prospective buyers and interested parties are strongly advised to independently verify the precise location and surroundings before bidding.