For Sale By Auction | 11:00, 13 September 2023 | Lot 43

Stone Cottage, Bradfield Road, Swafield, North Walsham, Norwich, Norfolk NR28 0QT

Sold £321,000

  • Detached House
  • 2 Bedrooms
  • Tenure: Freehold

Call the team on 01603 505 100 for more information

Auction Date

Wed 13/09/2023

Auction Time

11:00

Auction Venue

Livestream Auction

Delightful cottage in need of full refurbishment with opportunities to extend (stpp). Generous plot in a superb location close to North Norfolk.

This delightful cottage is in need of full restoration and has endless opportunities to extend subject to the necessary planning. The owner has started the project but has diverted his interests and had spoken with planners about the opportunities. Situated in a generous plot backing onto open fields, this property would make a perfect family home in rural Norfolk. Located close to the coast of North Norfolk with Mundesley only three and a half miles away, this would also make an ideal holiday home.

Tenure

Freehold

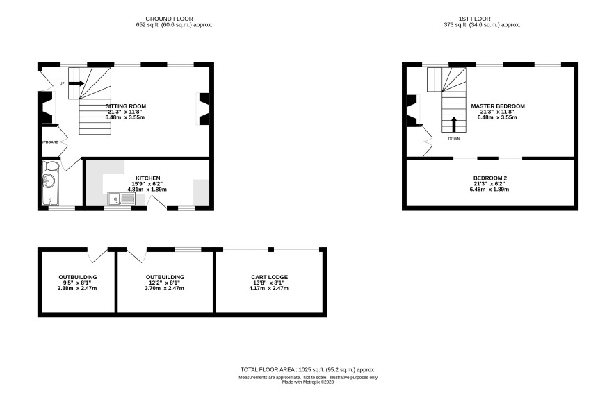
Ground floor

Sitting room, stairs to first floor, bathroom, kitchen

First floor

Master bedroom with one further bedroom leading off, potential to be split into two.

Exterior

Generous garden which stretches mainly to the front, double cart lodge, outbuildings.

Council Tax Band

C

Viewings

Open viewings are arranged and the final viewings are Monday 11 September. To book an appointment please call the Norwich office.

Energy Efficiency Rating (EPC)

Current Rating E

Services

Interested parties are requested to make their own enquiries to the relevant authorities as to the availability of services.

Local Authority

North Norfolk District Council

Solicitors

Ashtons Legal (Norwich), Ref: Simon Parker, Tel: 01603 703070

Important Notice to Prospective Buyers:

We draw your attention to the Special Conditions of Sale within the Legal Pack, referring to other charges in addition to the purchase price which may become payable. Such costs may include Search Fees, reimbursement of Sellers costs and Legal Fees, and Transfer Fees amongst others.

Additional Fees

Buyer's Premium - £960 inc VAT payable on exchange of contracts.

Administration Charge - 0.3% inc VAT of the purchase price, subject to a minimum of £1200 inc VAT, payable on exchange of contracts.

Disbursements - Please see the legal pack for any disbursements listed that may become payable by the purchaser on completion.

View Larger Map

Disclaimer: The map preview provided above is for general guidance only and may not accurately reflect the exact location or surrounding buildings. Prospective buyers and interested parties are strongly advised to independently verify the precise location and surroundings before bidding.