For Sale By Auction | 11:00, 13 September 2023 | Lot 44

Redundant Baptist Church, Chapel Loke, Salhouse, Norwich, Norfolk NR13 6RA

Sold £221,000

  • Place of Worship
  • Tenure: Freehold

Call the team on 01603 505 100 for more information

Auction Date

Wed 13/09/2023

Auction Time

11:00

Auction Venue

Livestream Auction

An attractive Grade II listed Baptist Church with useful outbuilding and approximately 0.5 acre of secluded grounds

This delightfully situated church and meeting room is suitable for a range of alternative uses, subject to planning approval. The building currently has a main worship space with an adjoining meeting room. Also within the grounds is a detached building currently providing toilet and kitchen facilities. The L-shaped plot includes off-road parking, lawned areas and graveyard. Salhoue is a sought after village approximately six miles north-east of Norwich.

Tenure

Freehold

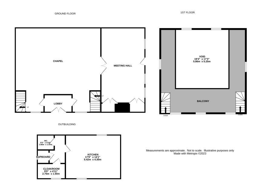
The Chapel

Main room with galleried area 8.4m x 8.3m, side meeting room 7.4 m x 4.3 m, LPG heating.

Outbuilding

Kitchen, toilets, storage.

Outside

L-shaped plot located in a Conservation Area, extending to approximately 0.5 acre (stms) with lawned areas, parking and graveyard (please refer to the legal pack for Covenants).

Viewing

Open Viewing has been scheduled for Friday 31th August BOOKING AN APPOINTMENT IS ESSENTIAL. Please call the Norwich office.

Services

Interested parties are requested to make their own enquiries to the relevant authorities as to the availability of services.

Local Authority

Broadland District Council

Solicitors

Wellers Law Group, Ref: Luke Roberts, Tel: 020 7481 6392

Important Notice to Prospective Buyers:

We draw your attention to the Special Conditions of Sale within the Legal Pack, referring to other charges in addition to the purchase price which may become payable. Such costs may include Search Fees, reimbursement of Sellers costs and Legal Fees, and Transfer Fees amongst others.

Additional Fees

Buyer's Premium - £600 inc VAT payable on exchange of contracts.

Administration Charge - 0.3% inc VAT of the purchase price, subject to a minimum of £1200 inc VAT, payable on exchange of contracts.

Disbursements - Please see the legal pack for any disbursements listed that may become payable by the purchaser on completion.

View Larger Map

Disclaimer: The map preview provided above is for general guidance only and may not accurately reflect the exact location or surrounding buildings. Prospective buyers and interested parties are strongly advised to independently verify the precise location and surroundings before bidding.