For Sale By Auction | 11:00, 13 September 2023 | Lot 110

15 Earls Street, Thetford, Norfolk IP24 2AB

Sold After

  • Terraced House
  • Tenure: Freehold

Call the team on 01603 505 100 for more information

Auction Date

Wed 13/09/2023

Auction Time

11:00

Auction Venue

Livestream Auction

Freehold commercial property with lapsed planing permission to convert into a three bedroom mid terrace house

This mid terrace property was previously a physiotherapy clinic and is now to be sold with vacant possession. Planning permission expired last year to convert it into a three bedroom house. The property is in a predominantly residential area just north of the town centre. It lies within a conservation area, however is not listed. It has gas central heating and is mostly double glazed. According to the valuation office website the office has an area of 70.7 sq/m and a rateable value of £6,800 with effect from 1st April 2023. An ideal conversion project for a builder or developer.

Tenure

Freehold

Planning

Planning permission was granted by Breckland District Council on 14th January 2019 for change of use from D1 to C3 (residential). Application number 3PL/2018/1321/CU. Further details and plans can be found on the public access website of Breckland District Council breckland.gov.uk/planning.

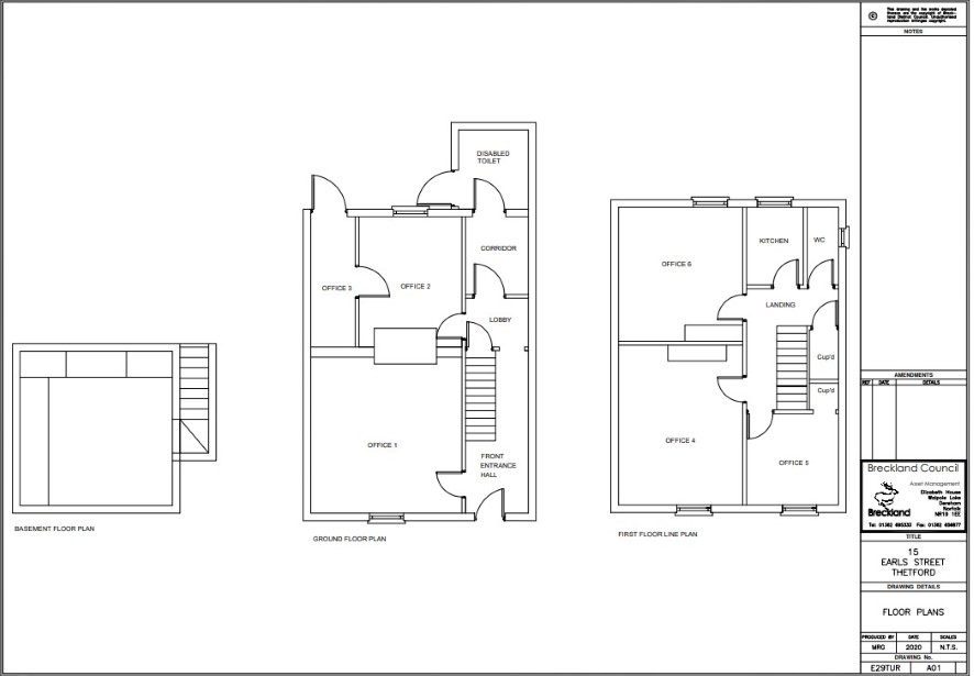
Lower Ground floor

Cellar

Ground floor

Front entrance hall, two offices, rear entrance hall, inner hall, wc

First floor

Landing, three offices, kitchen, wc

Outside

Rear garden with rear access to public car park off St Giles Lane.

Viewing

Open Viewing has been scheduled for Tuesday, 19 September - APPOINTMENT ESSENTIAL - please call our Norwich office to be allocated a time slot.

Energy Efficiency Rating (EPC)

Current Rating E

Services

Interested parties are requested to make their own enquiries to the relevant authorities as to the availability of services.

Local Authority

Breckland Council

Solicitors

Birketts (Norwich), Ref: Pedro Marques, Tel: 01603 756439

Important Notice to Prospective Buyers:

We draw your attention to the Special Conditions of Sale within the Legal Pack, referring to other charges in addition to the purchase price which may become payable. Such costs may include Search Fees, reimbursement of Sellers costs and Legal Fees, and Transfer Fees amongst others.

Additional Fees

Buyer's Premium - £900 inc VAT payable on exchange of contracts.

Administration Charge - 0.3% inc VAT of the purchase price, subject to a minimum of £1200 inc VAT, payable on exchange of contracts.

Disbursements - Please see the legal pack for any disbursements listed that may become payable by the purchaser on completion.

View Larger Map

Disclaimer: The map preview provided above is for general guidance only and may not accurately reflect the exact location or surrounding buildings. Prospective buyers and interested parties are strongly advised to independently verify the precise location and surroundings before bidding.