For Sale By Auction | 11:00, 13 September 2023 | Lot 109

Hillcrest, London Road, Capel St. Mary, Ipswich IP9 2JR

Sold £280,000

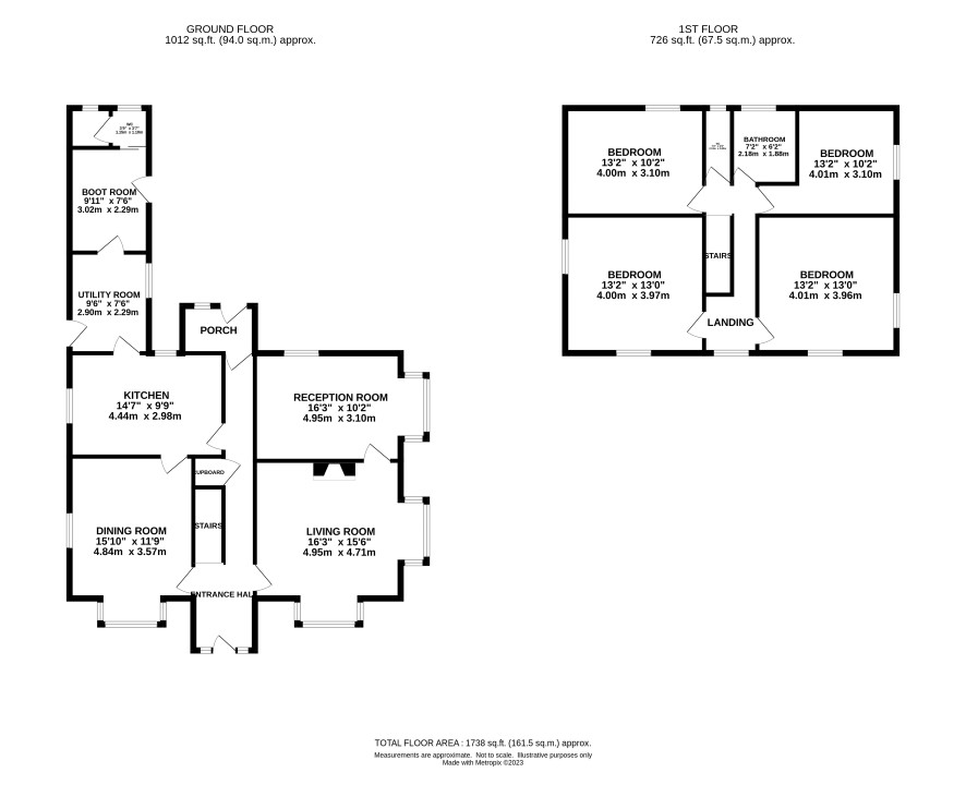
  • Detached House
  • 4 Bedrooms
  • Tenure: Freehold

Call the team on 01473 558 888 for more information

Auction Date

Wed 13/09/2023

Auction Time

11:00

Auction Venue

Livestream Auction

A substantial detached residence requiring repair and refurbishment.

Situated in the attractive village of Capel St Mary some 7 miles to the south of Ipswich just off the A12 is this spacious detached property which is in need of some repair and full refurbishment. The property offers three reception room, four bedroom accommodation and is set well back from the road with space to park several vehicles. Plans have also been prepared for demolition and the construction of a detached house and a pair of semis and although a planning application has not been submitted, the drawings are available in the online Legal Pack. An exciting opportunity which is sure to generate considerable developer interest.

Tenure

Freehold

Viewing

Open Viewings have been scheduled for Wednesday 30th August and Tuesday 5th September. BOOKING AN APPOINTMENT IS ESSENTIAL. Please contact our Ipswich office to make arrangements.

Energy Efficiency Rating (EPC)

Current Rating F

Services

Interested parties are requested to make their own enquiries to the relevant authorities as to the availability of services.

Local Authority

Babergh District Council

Solicitors

Fisher Jones Greenwood LLP (Colchester), Ref: Liza Jary, Tel: 01206 835252

Important Notice to Prospective Buyers:

We draw your attention to the Special Conditions of Sale within the Legal Pack, referring to other charges in addition to the purchase price which may become payable. Such costs may include Search Fees, reimbursement of Sellers costs and Legal Fees, and Transfer Fees amongst others.

Additional Fees

Buyer's Premium - £1140 inc VAT payable on exchange of contracts.

Administration Charge - 0.3% inc VAT of the purchase price, subject to a minimum of £1200 inc VAT, payable on exchange of contracts.

Disbursements - Please see the legal pack for any disbursements listed that may become payable by the purchaser on completion.

View Larger Map

Disclaimer: The map preview provided above is for general guidance only and may not accurately reflect the exact location or surrounding buildings. Prospective buyers and interested parties are strongly advised to independently verify the precise location and surroundings before bidding.