Postponed | Lot 54

James Cottage, Bury Road, Hepworth, Diss, Suffolk IP22 2PY

Postponed

  • Terraced House
  • 3 Bedrooms
  • Tenure: Freehold

Call the team on 01473 558 888 for more information

Auction Date

Wed 01/11/2023

Auction Time

11:00

Auction Venue

Livestream Auction

Three bedroom terraced house

The former public house has been converted into a well-presented terraced cottage with well-proportioned rooms, parking and a terrace to the rear. James Cottage extends approximately 1,400 sq/ft over two storeys and provides three bedrooms, a family bathroom, a WC, a kitchen, a dining room and an outbuilding with an additional WC. The property benefits from many of the original character features including the exposed brickwork and timber beams. The property is located on Bury Road, on Stanton's outskirts between Diss and Bury St Edmunds.

Tenure

Freehold

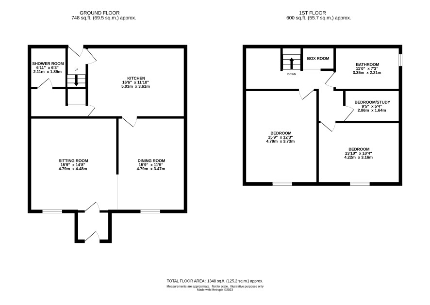
Ground Floor

Sitting room, dining room, kitchen and WC

First Floor

Three bedrooms and family bathroom

Outbuilding

Storage room (possible conversion opportunity STPP) WC

Council Tax Band

C

Energy Efficiency Rating (EPC)

Current Rating D

Services

Interested parties are requested to make their own enquiries to the relevant authorities as to the availability of services.

Local Authority

West Suffolk Council

Solicitors

Sprake and Kingsley, Ref: John Hay, Tel: 01986 892721

Offered in association with

Starkings and Watson

Important Notice to Prospective Buyers:

We draw your attention to the Special Conditions of Sale within the Legal Pack, referring to other charges in addition to the purchase price which may become payable. Such costs may include Search Fees, reimbursement of Sellers costs and Legal Fees, and Transfer Fees amongst others.

Additional Fees

Buyer's Premium - £1200 inc VAT payable on exchange of contracts.

Administration Charge - 0.3% inc VAT of the purchase price, subject to a minimum of £1200 inc VAT, payable on exchange of contracts.

Disbursements - Please see the legal pack for any disbursements listed that may become payable by the purchaser on completion.

View Larger Map

Disclaimer: The map preview provided above is for general guidance only and may not accurately reflect the exact location or surrounding buildings. Prospective buyers and interested parties are strongly advised to independently verify the precise location and surroundings before bidding.