For Sale By Auction | 11:00, 01 November 2023 | Lot 109

18 Morton Road, Lowestoft, Suffolk NR33 0JQ

Sold £291,000

  • Detached House
  • 3 Bedrooms
  • Tenure: Freehold

Call the team on 01603 505 100 for more information

Auction Date

Wed 01/11/2023

Auction Time

11:00

Auction Venue

Livestream Auction

Established detached house in need of some updating situated in an exceptionally large plot with outline planning permission for a bungalow to be built within the grounds

This family home is a well established detached house situated close to the beach in the East Suffolk resort of Lowestoft. In need of some updating throughout, this three bedroom house offers an exceptional garden which stretches away from the property and the owners have obtained outline planning permission for a detached single storey dwelling. Offering a rare opportunity to have a family member close to you or divide into two properties. This is a hidden gem which needs to be viewed to be appreciated.

Tenure

Freehold

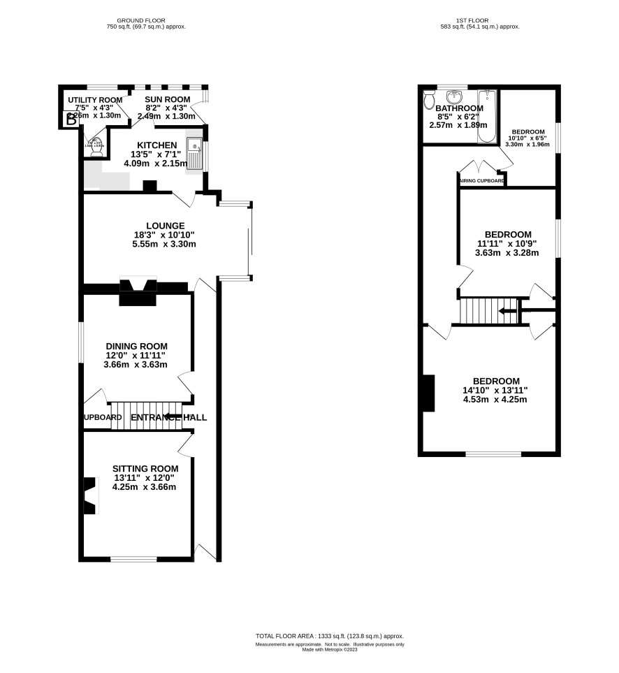
Ground Floor

Hall, sitting room, dining room, lounge, kitchen, lean to, boiler room, separate w.c.

First Floor

Landing, three double bedrooms, family bathroom

Outside

A small walled garden provides access to the front entrance. With large gates to the side provide access to the rear garden, garage and building plot.

Council Tax Band

C

Viewings

Viewings are being held and the next opportunity to view is Friday 27th October. Please contact the Norwich Office to book an appointment

Energy Efficiency Rating (EPC)

Current Rating E

Services

Interested parties are requested to make their own enquiries to the relevant authorities as to the availability of services.

Local Authority

East Suffolk Council

Solicitors

Ward Gethin Archer (Dereham), Ref: Tracy Guest, Tel: 01362 852918

Important Notice to Prospective Buyers:

We draw your attention to the Special Conditions of Sale within the Legal Pack, referring to other charges in addition to the purchase price which may become payable. Such costs may include Search Fees, reimbursement of Sellers costs and Legal Fees, and Transfer Fees amongst others.

Additional Fees

Buyer's Premium - £960 inc VAT payable on exchange of contracts.

Administration Charge - 0.3% inc VAT of the purchase price, subject to a minimum of £1200 inc VAT, payable on exchange of contracts.

Disbursements - Please see the legal pack for any disbursements listed that may become payable by the purchaser on completion.

View Larger Map

Disclaimer: The map preview provided above is for general guidance only and may not accurately reflect the exact location or surrounding buildings. Prospective buyers and interested parties are strongly advised to independently verify the precise location and surroundings before bidding.