For Sale By Auction | 11:00, 01 November 2023 | Lot 118

14 Needham Place, St. Stephens Square, Norwich, Norfolk NR1 3SD

Sold £91,000

  • Flat
  • Tenure: Leasehold. 125 years from 29th September 2006

Call the team on 01603 505 100 for more information

Auction Date

Wed 01/11/2023

Auction Time

11:00

Auction Venue

Livestream Auction

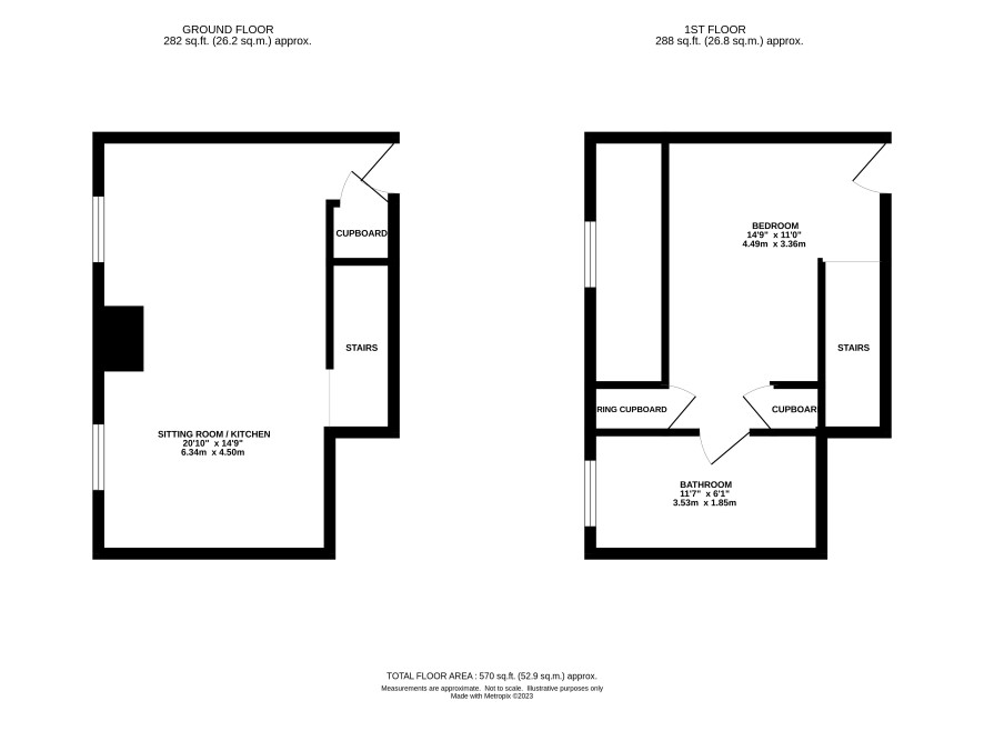
City centre one bedroom duplex apartment let producing £8,700 pa

This one bedroom second floor duplex city centre apartment enjoys a convenient position at the top of St Stephens Street. The property is currently let on an assured shorthold tenancy at £725 pcm (£8,700 pa) to an established tenant that has been in occupation for over three years. It has double glazing and is presented in good order throughout. An ideal investment opportunity.

Tenure

Leasehold. 125 years from 29th September 2006

Ground floor

Secure entry system giving access to communal entrance lobby, lift and staircase to all floors

Accommodation

Large open plan kitchen / sitting room, stairs to upper level with bedroom, bathroom and walk in cupboard

Outside

Communal roof top terrace garden laid to decking, paving and gravel

Energy Efficiency Rating (EPC)

Current Rating D

Services

Interested parties are requested to make their own enquiries to the relevant authorities as to the availability of services.

Local Authority

Norwich City Council

Solicitors

Spire Solicitors LLP (Norwich), Ref: Haydn Orford, Tel: 01603 677077

Important Notice to Prospective Buyers:

We draw your attention to the Special Conditions of Sale within the Legal Pack, referring to other charges in addition to the purchase price which may become payable. Such costs may include Search Fees, reimbursement of Sellers costs and Legal Fees, and Transfer Fees amongst others.

Additional Fees

Administration Charge - 0.3% inc VAT of the purchase price, subject to a minimum of £1200 inc VAT, payable on exchange of contracts.

Disbursements - Please see the legal pack for any disbursements listed that may become payable by the purchaser on completion.

View Larger Map

Disclaimer: The map preview provided above is for general guidance only and may not accurately reflect the exact location or surrounding buildings. Prospective buyers and interested parties are strongly advised to independently verify the precise location and surroundings before bidding.