For Sale By Auction | 11:00, 13 December 2023 | Lot 74

2 Church Plain, Loddon, Norfolk NR14 6EX

*Guide | £300,000 - £400,000 (plus fees)

  • Detached House
  • Tenure: Freehold

Call the team on 01603 505 100 for more information

Auction Date

Wed 13/12/2023

Auction Time

11:00

Auction Venue

Livestream Auction

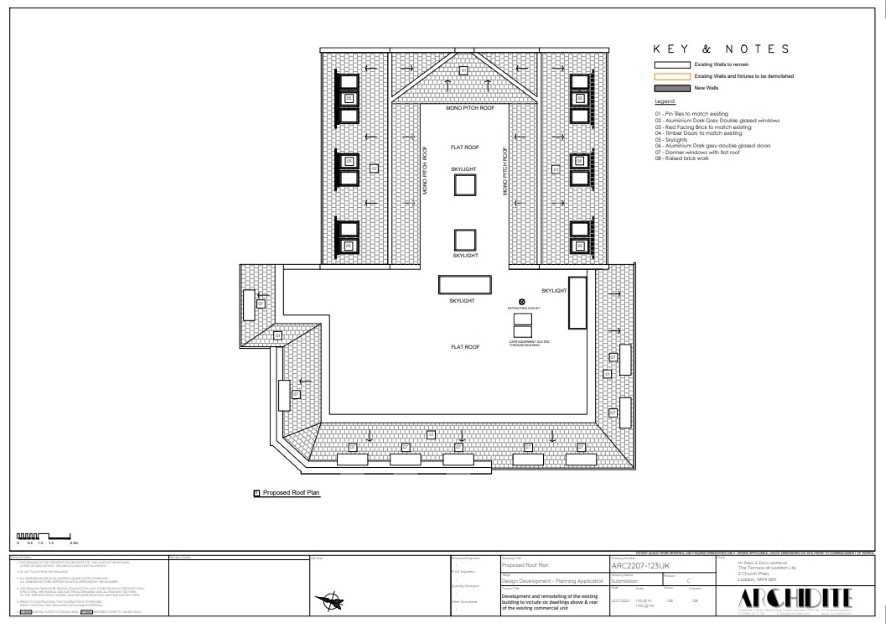
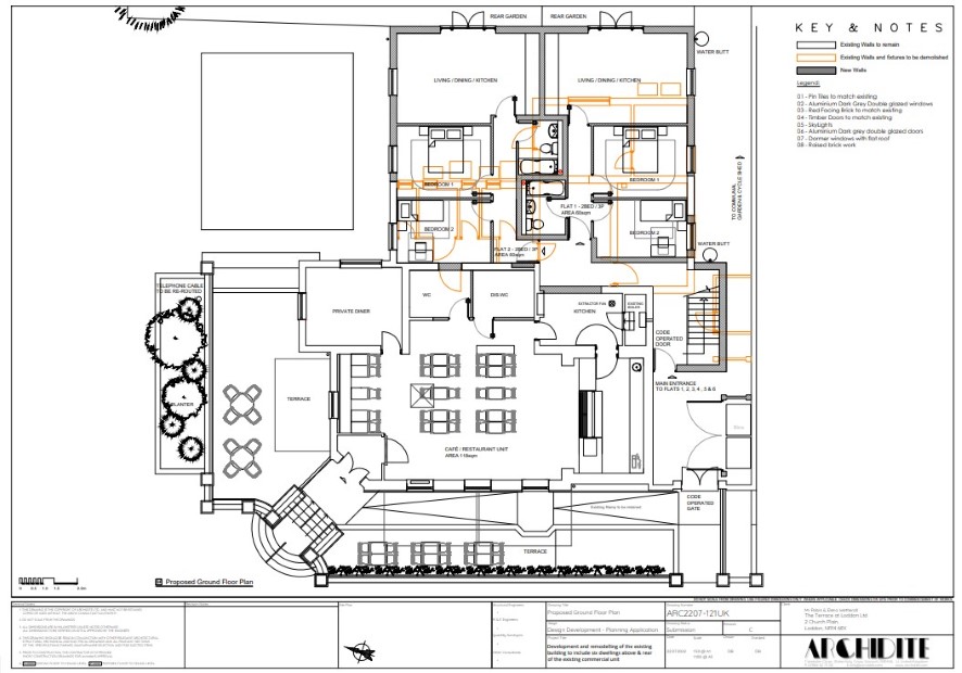
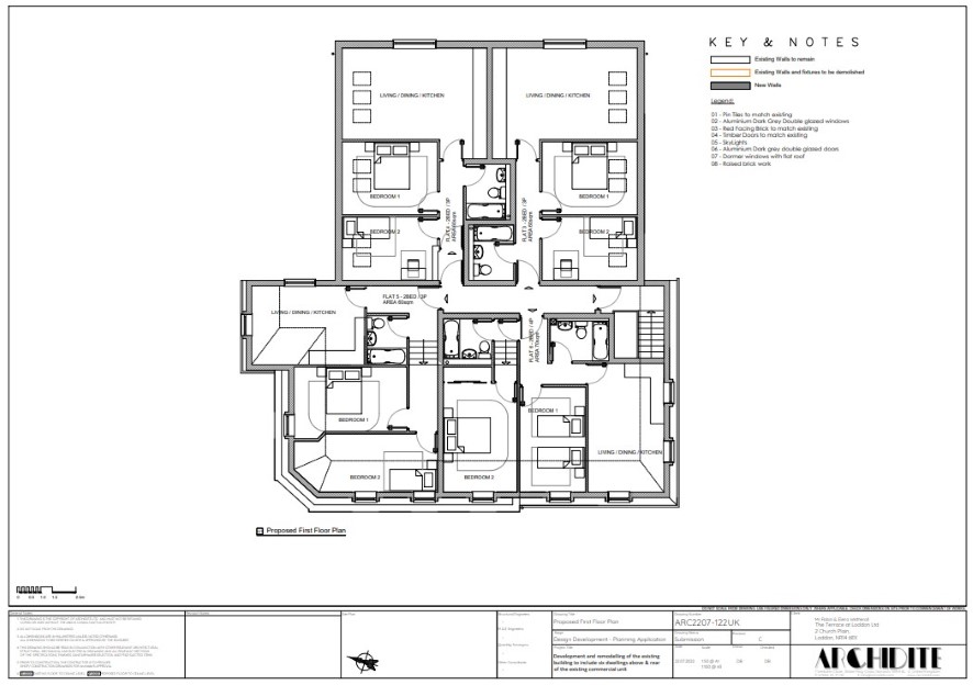
Former bank with planning permission to redevelop into six apartments whilst retaining the front commercial unit

This 265 sq/m former Barclays bank has also operated as a restaurant called The Terrace and is now to be sold with vacant possession. The property has a range of potential uses and benefits from full planning permission to convert and extend to provide six two bedroom apartments whilst retaining the valuable A3 use. The plans allow for two apartments on the ground floor along with the café and a further four apartments on the first floor. The property is not listed and lies within a conservation area with an attractive outlook over Holy Trinity Church.

Tenure

Freehold

Note

According to the valuation office website the restaurant has an area of 265 sq/m and a rateable value of £11,000 with effect from 1st April 2023.

Proposed Accommodation

Flat 1: 60 square metres, two bedroom ground floor apartment Flat 2: 60 square metres, two bedroom ground floor apartment Flat 3: 60 square metres, two bedroom first floor apartment Flat 4: 60 square metres, two bedroom first floor apartment Flat 5: 60 square metres, two double bedroom first floor apartment Flat 6: 70 square metres, two double bedroom first floor apartment

Existing Accommodation

Main room, room, three toilets, office, staff room, kitchen, wash/prep area

Outside

Front, side and rear garden, coal shed to side, permit parking available in adjacent public car park, 0.2 acre site

Planning

Full planning permission was granted by South Norfolk Council on 6th April 2023 for retention of existing cafe with proposed extension and alterations of existing building to provide six dwellings with associated landscape work. Application number 2022/1995. Further details and plans can be found on the public access website of South Norfolk District Council southnorfolkandbroadland.gov.uk/planning

Viewings

Viewings are being organised and the next one is Friday 2nd February. Please contact the Norwich Office to book an appointment.

Energy Efficiency Rating (EPC)

Current Rating C

Services

Interested parties are requested to make their own enquiries to the relevant authorities as to the availability of services.

Local Authority

South Norfolk Council

Solicitors

Birketts (Ipswich), Ref: Bethany Wade, Tel: 01473 406238

Important Notice to Prospective Buyers:

We draw your attention to the Special Conditions of Sale within the Legal Pack, referring to other charges in addition to the purchase price which may become payable. Such costs may include Search Fees, reimbursement of Sellers costs and Legal Fees, and Transfer Fees amongst others.

Additional Fees

Administration Charge - 0.3% inc VAT of the purchase price, subject to a minimum of £1200 inc VAT, payable on exchange of contracts.

Disbursements - Please see the legal pack for any disbursements listed that may become payable by the purchaser on completion.

View Larger Map

Disclaimer: The map preview provided above is for general guidance only and may not accurately reflect the exact location or surrounding buildings. Prospective buyers and interested parties are strongly advised to independently verify the precise location and surroundings before bidding.