For Sale By Auction | 11:00, 07 February 2024 | Lot 78

15 Paget Road, Great Yarmouth, Norfolk NR30 2DN

Sold £140,000

  • End of Terrace House
  • 8 Bedrooms
  • Tenure: Freehold

Call the team on 01603 505 100 for more information

Auction Date

Wed 07/02/2024

Auction Time

11:00

Auction Venue

Livestream Auction

A substantial four storey, eight bedroom, end terrace house with planning consent to extend and convert into four flats

This spacious eight bedroom hall entrance terrace house is in need of updating but also benefits from the ability to extend and convert into four self-contained one and two bedroom flats. The property would produce an excellent rental income once modernised as it sits in a popular area of the town situated close to the sea front and within walking distance of the town centre shops. Copies of the plans and planning permission are available for inspection on the Great Yarmouth Borough Councils website Ref 06/19/0520/CU which expires in October 2024.

Tenure

Freehold

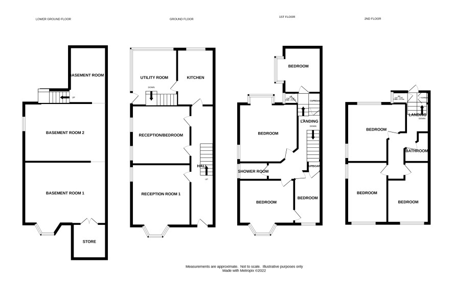
Basement

Three rooms

Ground Floor

Hall, lounge, dining room, kitchen, lean to.

First Floor

Landing, four bedrooms, shower room, wc.

Second Floor

Landing, three bedrooms bathroom, wc.

Planning

Planning consent has been granted by Great Yarmouth Borough Council for conversion into four flats. Planning ref number: 06/19/0520/CU

Proposed Accommodation

Basement: Storage Rooms Ground Floor: 2 bedroom flat First Floor: 1 bedroom flat Second Floor: 1 bedroom flat Rear: First and second floor one bedroom maisonette

Viewings

Viewings are being arranged and the next is on Friday 26th January. To book an appointment please call the Norwich office.

Council Tax Band

C

Energy Efficiency Rating (EPC)

Current Rating E

Services

Interested parties are requested to make their own enquiries to the relevant authorities as to the availability of services.

Local Authority

Great Yarmouth Borough Council

Solicitors

Archbold Solicitors, 839 High Road, Ref: Archbold Solicitors, Tel: 0203 500 0919

Important Notice to Prospective Buyers:

We draw your attention to the Special Conditions of Sale within the Legal Pack, referring to other charges in addition to the purchase price which may become payable. Such costs may include Search Fees, reimbursement of Sellers costs and Legal Fees, and Transfer Fees amongst others.

Additional Fees

Buyer's Premium - £960 inc VAT payable on exchange of contracts.

Administration Charge - 0.3% inc VAT of the purchase price, subject to a minimum of £1200 inc VAT, payable on exchange of contracts.

Disbursements - Please see the legal pack for any disbursements listed that may become payable by the purchaser on completion.

View Larger Map

Disclaimer: The map preview provided above is for general guidance only and may not accurately reflect the exact location or surrounding buildings. Prospective buyers and interested parties are strongly advised to independently verify the precise location and surroundings before bidding.