Sold Prior | Lot 77

19 North Market Road, Great Yarmouth, Norfolk NR30 2DX

Sold Prior

  • End of Terrace House
  • 2 Bedrooms
  • Tenure: Freehold

Call the team on 01603 505 100 for more information

Auction Date

Wed 07/02/2024

Auction Time

11:00

Auction Venue

Livestream Auction

Victorian two bedroom end terrace house with off road parking near the town centre

Of interest to cash buyers is this two bedroom end terrace house. Previously let at £550 pcm (£6,600 pa), it is now to be sold with vacant possession. The property has electric heating, is double glazed, and requires some improvement to realise its full potential. The house is deceptively spacious and extends to around 688 sq/ft with the benefit of off road parking to the rear side. 19a to the rear is not being offered. It is located just north of the town centre near a comprehensive range of services and amenities. This would appeal to an owner occupier or investor.

Tenure

Freehold

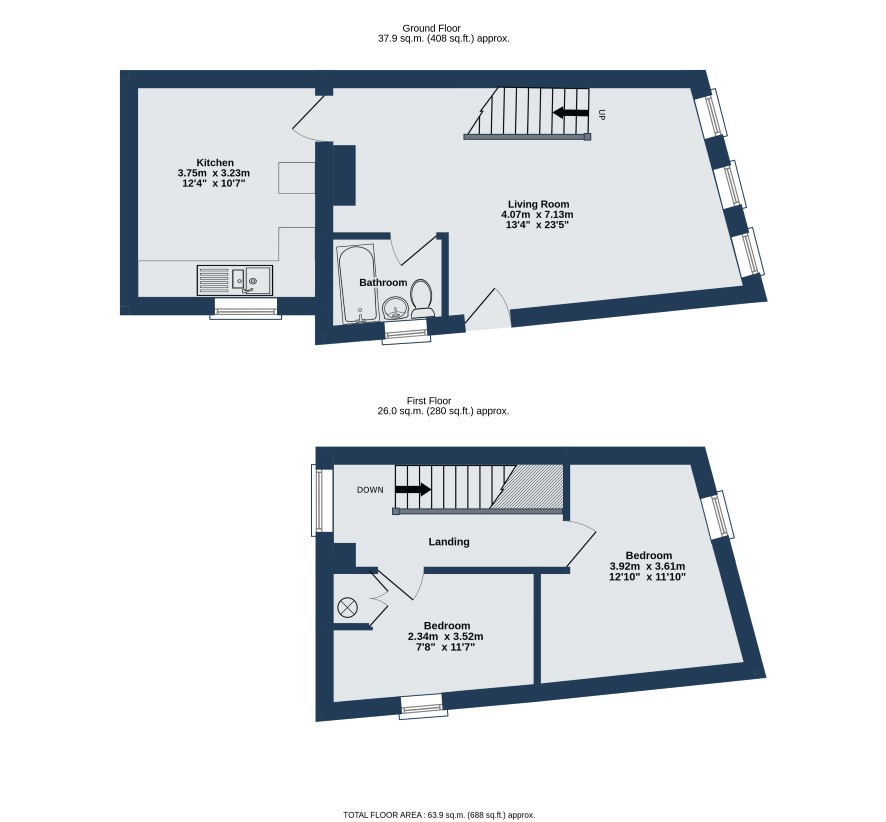
Ground floor

Open plan living room, bathroom, kitchen

First floor

Landing, two bedrooms

Outside

Rear and side yard offering off road parking, brick outbuilding with two store rooms

Council Tax Band

A

Viewings

Viewings are by appointment only. The next viewing is on Thursday 21st December. Please call the Norwich office to book an appointment.

Energy Efficiency Rating (EPC)

Current Rating E

Services

Interested parties are requested to make their own enquiries to the relevant authorities as to the availability of services.

Local Authority

Great Yarmouth Borough Council

Solicitors

England and Co (Great Yarmouth), 7 & 8 South Quay, Ref: Vickie Hurren, Tel: 01493844308

Offered in association with

Larkes

Important Notice to Prospective Buyers:

We draw your attention to the Special Conditions of Sale within the Legal Pack, referring to other charges in addition to the purchase price which may become payable. Such costs may include Search Fees, reimbursement of Sellers costs and Legal Fees, and Transfer Fees amongst others.

Additional Fees

Buyer's Premium - £900 inc VAT payable on exchange of contracts.

Administration Charge - 0.3% inc VAT of the purchase price, subject to a minimum of £1200 inc VAT, payable on exchange of contracts.

Disbursements - Please see the legal pack for any disbursements listed that may become payable by the purchaser on completion.

View Larger Map

Disclaimer: The map preview provided above is for general guidance only and may not accurately reflect the exact location or surrounding buildings. Prospective buyers and interested parties are strongly advised to independently verify the precise location and surroundings before bidding.