For Sale By Auction | 11:00, 20 March 2024 | Lot 7

22 Withy Way, Taverham, Norwich, Norfolk NR8 6YB

Sold £293,000

  • Detached House
  • 4 Bedrooms
  • Tenure: Freehold

Call the team on 01603 505 100 for more information

Auction Date

Wed 20/03/2024

Auction Time

11:00

Auction Venue

Livestream Auction

A vacant detached four bedroom house requiring modernisation and redecoration

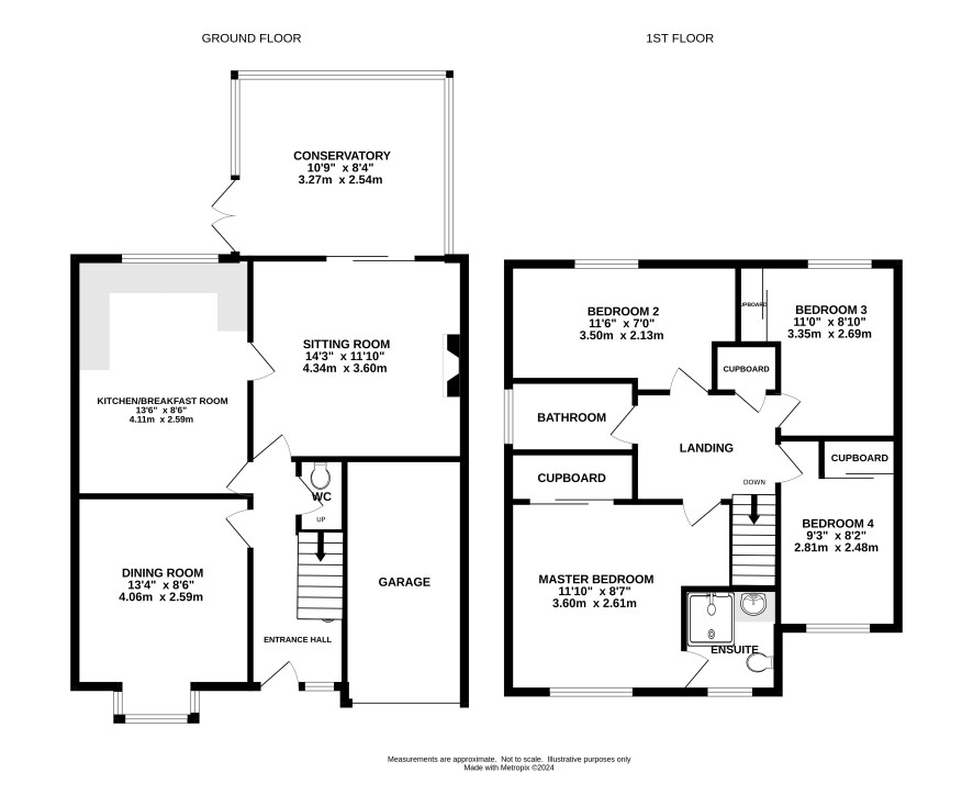
This spacious four bedroom detached house has been in the same family ownership for many years but is now vacant and in need of updating. The property benefits from two reception rooms, a large conservatory, kitchen and cloakroom on the ground floor, on the first floor there is a master bedroom with en-suite shower room and three further bedrooms with a separate family bathroom. The gas boiler appears to be recently installed but has not been tested. There is off road parking, integral garage and a enclosed rear garden. Thorpe Marriot is a popular residential area adjacent to Taverham and Drayton which are well served by community facilities, well respected schools and shops.

Tenure

Freehold

Ground Floor

Hall, lounge, dining room, kitchen, conservatory

First Floor

Landing, four bedrooms, two bathrooms

Outside

Front garden with parking area, access to integral garage. Enclosed rear garden in need of attention.

Council Tax Band

D

Viewings

Open viewings are arranged and the final ones are on Monday 18 March. Please call the Norwich office to book an appointment.

Energy Efficiency Rating (EPC)

Current Rating D

Services

Interested parties are requested to make their own enquiries to the relevant authorities as to the availability of services.

Local Authority

Broadland District Council

Solicitors

Ward Gethin Archer (Dereham), Ref: Tracy Guest, Tel: 01362 852918

Offered in association with

Normove

Important Notice to Prospective Buyers:

We draw your attention to the Special Conditions of Sale within the Legal Pack, referring to other charges in addition to the purchase price which may become payable. Such costs may include Search Fees, reimbursement of Sellers costs and Legal Fees, and Transfer Fees amongst others.

Additional Fees

Buyer's Premium - £960 inc VAT payable on exchange of contracts.

Administration Charge - 0.3% inc VAT of the purchase price, subject to a minimum of £1200 inc VAT, payable on exchange of contracts.

Disbursements - Please see the legal pack for any disbursements listed that may become payable by the purchaser on completion.

View Larger Map

Disclaimer: The map preview provided above is for general guidance only and may not accurately reflect the exact location or surrounding buildings. Prospective buyers and interested parties are strongly advised to independently verify the precise location and surroundings before bidding.