Postponed | Lot 9

Flat 1 & 2, 27 Hall Road, Norwich, Norfolk NR1 3HQ

Postponed

  • Block of Apartments
  • Tenure: Freehold

Call the team on 01603 505 100 for more information

Auction Date

Wed 20/03/2024

Auction Time

11:00

Auction Venue

Livestream Auction

Two one-bedroom flats in a single storey dwelling close Norwich city centre, one tenanted producing £7,200 pa inc. bills, the other vacant. Both require improvement.

This single storey building located behind The Freemasons Arms pub is accessed off Hobart Square. It comprises two one-bedroom flats, has gas central heating, is partially double glazed and requires improvement. Flat 1 at the front is currently let at £600 pcm inclusive of bills and is in need of some updating. Flat 2 has an enclosed garden, is in need of full restoration and is currently vacant. They could be turned into one bungalow (stpp). The building was formerly a function room for the pub, known as The Nelson Room, but has been flats for many years and is convenient for the city centre.

Tenure

Freehold

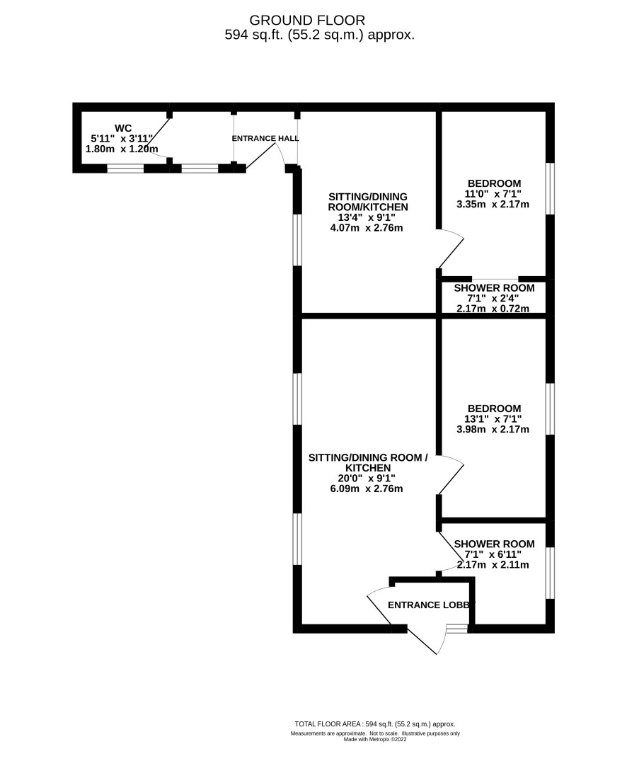
Flat 1

Own entrance via private gate, open plan living kitchen area, bedroom and bathroom

Flat 2

Currently stripped out ready for improvements to take place. Own entrance via private gate and garden, hall, cloakroom, living room, kitchen and bathroom

Council Tax Band

A, A

Energy Efficiency Rating (EPC)

Current Rating E, E

Services

Interested parties are requested to make their own enquiries to the relevant authorities as to the availability of services.

Local Authority

Norfolk County Council

Solicitors

HKB Wiltshires (Lowestoft), Ref: Philip Tuttle, Tel: 01502 582338

Important Notice to Prospective Buyers:

We draw your attention to the Special Conditions of Sale within the Legal Pack, referring to other charges in addition to the purchase price which may become payable. Such costs may include Search Fees, reimbursement of Sellers costs and Legal Fees, and Transfer Fees amongst others.

Additional Fees

Buyer's Premium - £960 inc VAT payable on exchange of contracts.

Administration Charge - 0.3% inc VAT of the purchase price, subject to a minimum of £1200 inc VAT, payable on exchange of contracts.

Disbursements - Please see the legal pack for any disbursements listed that may become payable by the purchaser on completion.

View Larger Map

Disclaimer: The map preview provided above is for general guidance only and may not accurately reflect the exact location or surrounding buildings. Prospective buyers and interested parties are strongly advised to independently verify the precise location and surroundings before bidding.