For Sale By Auction | 11:00, 01 May 2024 | Lot 113

116 Bevan Street East, Lowestoft, Suffolk NR32 2AG

*Guide | £70,000 - £90,000 (plus fees)

  • Mixed Use
  • Tenure: Freehold

Call the team on 01603 505 100 for more information

Auction Date

Wed 01/05/2024

Auction Time

11:00

Auction Venue

Livestream Auction

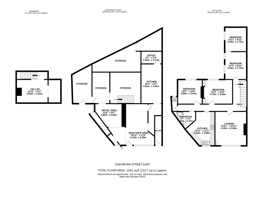
A Freehold shop with deceptively large accommodation located in a prime retail area, with rear access to private enclosed parking.

The ground floor shop has over 1500 sq/ft of space including rear garaging and parking. There is a dry basement and numerous storage areas. The shop has been a pet shop for many years but is to be sold with vacant possession. This high footfall location could be used for a variety of alternative uses or developments (subject to planning) The property is being sold freehold subject to the sale of the first floor flat which has been sold on a long lease with a ground rent income of £150 pa.

Tenure

Freehold

Ground Floor

Main shop and retail areas, storage rooms, kitchen/staff area, w.c.

First Floor

The first floor flat has been sold on a 999 year lease subject to a ground rent income of £150 pa (not inspected)

Business Rates

Current rateable value from 1 April 2023 to present: £7,000

Viewings

Open viewings are being arranged in conjunction with the vendor. To book an appointment please call the Norwich office.

Energy Efficiency Rating (EPC)

Current Rating Shop - C / Flat - E

Services

Interested parties are requested to make their own enquiries to the relevant authorities as to the availability of services.

Local Authority

Waveney District Council

Solicitors

Norton Peskett (Great Yarmouth), Ref: Matthew Breeze, Tel: 01493 849225

Important Notice to Prospective Buyers:

We draw your attention to the Special Conditions of Sale within the Legal Pack, referring to other charges in addition to the purchase price which may become payable. Such costs may include Search Fees, reimbursement of Sellers costs and Legal Fees, and Transfer Fees amongst others.

Additional Fees

Buyer's Premium - £420 inc VAT payable on exchange of contracts.

Administration Charge - 0.3% inc VAT of the purchase price, subject to a minimum of £1200 inc VAT, payable on exchange of contracts.

Disbursements - Please see the legal pack for any disbursements listed that may become payable by the purchaser on completion.

View Larger Map

Disclaimer: The map preview provided above is for general guidance only and may not accurately reflect the exact location or surrounding buildings. Prospective buyers and interested parties are strongly advised to independently verify the precise location and surroundings before bidding.