Withdrawn | Lot 114

190 St. Peters Street, Lowestoft, Suffolk NR32 2LY

Withdrawn

  • Terraced House
  • 3 Bedrooms
  • Tenure: Freehold

Call the team on 01603 505 100 for more information

Auction Date

Wed 01/05/2024

Auction Time

11:00

Auction Venue

Livestream Auction

This three bedroom mid terrace terrace is to be sold with vacant possession. The property benefits from an off road parking space to the rear.

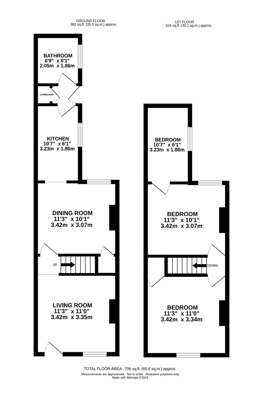
Having been tenanted for many years this three bedroom mid terrace house is to be sold with vacant possession. The property benefits from an off road parking space to the rear and enclosed rear garden, Accommodation comprises, Sitting room, dining room, kitchen and ground floor bathroom. On the first floor there are two bedroom off landing and bedroom three off the second bedroom. The property benefits from gas central heating and sealed unit double glazing. Ideal for both the owner occupier and investor.

Tenure

Freehold

Ground Floor

Sitting room, dining room, kitchen, bathroom

First Floor

Two bedrooms off landing and bedroom three off second bedroom.

Outside

The property benefits from front and rear external wall insulation. Enclosed rear garden with raised lawn and pedestrian gate to rear access and parking space.

Council Tax Band

A

Viewing

Open viewings are arranged and the next is on Thursday 18 April. To book an appointment please call the Norwich office.

Energy Efficiency Rating (EPC)

Current Rating D

Services

Interested parties are requested to make their own enquiries to the relevant authorities as to the availability of services.

Local Authority

East Suffolk Council

Solicitors

Norton Peskett (Lowestoft), Ref: Steven Knight, Tel: 01502 533 000

Important Notice to Prospective Buyers:

We draw your attention to the Special Conditions of Sale within the Legal Pack, referring to other charges in addition to the purchase price which may become payable. Such costs may include Search Fees, reimbursement of Sellers costs and Legal Fees, and Transfer Fees amongst others.

Additional Fees

Buyer's Premium - £600 inc VAT payable on exchange of contracts.

Administration Charge - 0.3% inc VAT of the purchase price, subject to a minimum of £1200 inc VAT, payable on exchange of contracts.

Disbursements - Please see the legal pack for any disbursements listed that may become payable by the purchaser on completion.

View Larger Map

Disclaimer: The map preview provided above is for general guidance only and may not accurately reflect the exact location or surrounding buildings. Prospective buyers and interested parties are strongly advised to independently verify the precise location and surroundings before bidding.