Sold Prior | Lot 92

2 Flint House, Tuddenham Road, Barton Mills, Bury St. Edmunds, Suffolk IP28 6AG

Sold Prior

  • Semi-Detached House
  • 2 Bedrooms
  • Tenure: Freehold

Call the team on 01473 558 888 for more information

Auction Date

Wed 01/05/2024

Auction Time

11:00

Auction Venue

Livestream Auction

Charming two bedroom semi-detached flint cottage conveniently situated for A11, Mildenhall and Lakenheath airbases.

The cottage is tucked immediately off the A11 and is convenient for access to the A11. Tenanted until recently the property is now vacant and the current owner has redecorated throughout, however further improvements to kitchen and bathroom could be made. This cozy cottage offers parking, small rear garden and workshop and would make an ideal Airbnb for events at the Snetterton race track or a rental for the US airbase at Mildenhall and Lakenheath. The accommodation offers, hallway, siting room with open fire, kitchen/diner, two bedrooms and unusual for a cottage, an upstairs bathroom. There is parking for two vehicles to the side of the property and a five bar gate offers access to the rear garden and workshop. The cottage is located opposite a small holding with parcel of land measuring 2.5 acres STMS and is being offered in the same auction on 1st May.

Tenure

Freehold

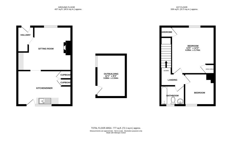
Ground Floor

Hallway, sitting room, kitchen/diner

First Floor

Two double bedrooms and bathroom

Outside

Gravel driveway offering parking for two vehicles, five bar gate provides access to the enclosed rear garden and workshop.

Council Tax Band

B

Viewings

Viewings being held by appointment, please contact the Norwich office to book your appointment.

Energy Efficiency Rating (EPC)

Current Rating F

Services

Interested parties are requested to make their own enquiries to the relevant authorities as to the availability of services.

Local Authority

West Suffolk Council

Solicitors

Ward Gethin Archer (Dereham), Ref: Tracy Guest, Tel: 01362 852918

Important Notice to Prospective Buyers:

We draw your attention to the Special Conditions of Sale within the Legal Pack, referring to other charges in addition to the purchase price which may become payable. Such costs may include Search Fees, reimbursement of Sellers costs and Legal Fees, and Transfer Fees amongst others.

Additional Fees

Buyer's Premium - £960 inc VAT payable on exchange of contracts.

Administration Charge - 0.3% inc VAT of the purchase price, subject to a minimum of £1200 inc VAT, payable on exchange of contracts.

Disbursements - Please see the legal pack for any disbursements listed that may become payable by the purchaser on completion.

View Larger Map

Disclaimer: The map preview provided above is for general guidance only and may not accurately reflect the exact location or surrounding buildings. Prospective buyers and interested parties are strongly advised to independently verify the precise location and surroundings before bidding.