For Sale By Auction | 11:00, 01 May 2024 | Lot 14

70 Stanley Street, Lowestoft, Suffolk NR32 2DZ

Sold £80,000

  • Terraced House
  • 3 Bedrooms
  • Tenure: Freehold

Call the team on 01603 505 100 for more information

Auction Date

Wed 01/05/2024

Auction Time

11:00

Auction Venue

Livestream Auction

A three bedroom terrace house requiring modernisation

Having been tenanted for many years this three bedroom mid terrace house is to be sold with vacant possession and in need of a program of updating and redecoration to realise its full potential. The property does have gas central heating, sealed unit double glazing and has the potential for an off road parking space in the rear garden. Stanley Street is within a short walk of the town centre shops and railway station. The beach, and a wide range of useful community facilities are also located nearby.

Tenure

Freehold

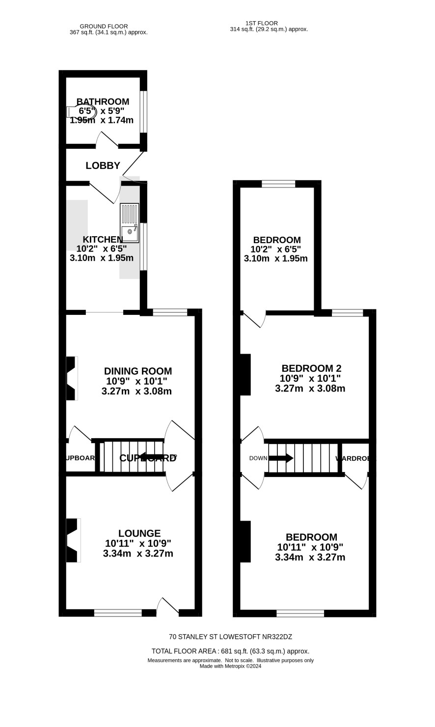
Ground Floor

Lounge, dining room, kitchen, bathroom

First Floor

Three bedrooms

Outside

Small front garden. good size rear garden with rear access.

Council Tax Band

A

Viewings

Open viewings are arranged and the final one is on Monday 29 April. To book an appointment please call the Norwich office.

Energy Efficiency Rating (EPC)

Current Rating C

Services

Interested parties are requested to make their own enquiries to the relevant authorities as to the availability of services.

Local Authority

East Suffolk Council

Solicitors

Goodwin Cowley, Ref: Esther Tan, Tel: 01502 532700

Important Notice to Prospective Buyers:

We draw your attention to the Special Conditions of Sale within the Legal Pack, referring to other charges in addition to the purchase price which may become payable. Such costs may include Search Fees, reimbursement of Sellers costs and Legal Fees, and Transfer Fees amongst others.

Additional Fees

Buyer's Premium - £600 inc VAT payable on exchange of contracts.

Administration Charge - 0.3% inc VAT of the purchase price, subject to a minimum of £1200 inc VAT, payable on exchange of contracts.

Disbursements - Please see the legal pack for any disbursements listed that may become payable by the purchaser on completion.

View Larger Map

Disclaimer: The map preview provided above is for general guidance only and may not accurately reflect the exact location or surrounding buildings. Prospective buyers and interested parties are strongly advised to independently verify the precise location and surroundings before bidding.