For Sale By Auction | 11:00, 01 May 2024 | Lot 15

79 Norwich Road, Fakenham, Norfolk NR21 8HH

Sold £219,000

  • Semi-Detached House
  • 5 Bedrooms
  • Tenure: Freehold

Call the team on 01603 505 100 for more information

Auction Date

Wed 01/05/2024

Auction Time

11:00

Auction Venue

Livestream Auction

A substantial semi-detached Victorian house part modernised and in need of completion

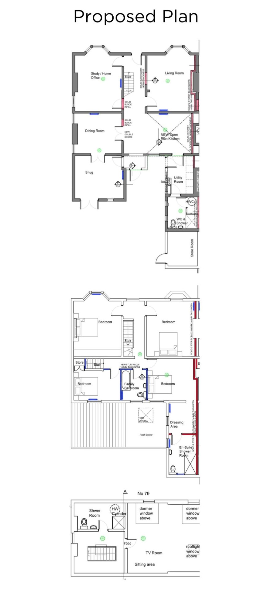
This impressive three storey semi-detached house has been partially modernised including being fully re-roofed and stripped ready for the remainder of the refurbishment work to be completed. Once completed the property will offer five bedrooms, three bathrooms and spacious ground floor reception room that include an open plan kitchen/diner, living room and study. The house will offer excellent family accommodation with ample off road parking and pleasant gardens. Fakenham town centre is within walking distance and there are a wide range of facilities nearby including the picturesque North Norfolk coast.

Tenure

Freehold

Proposed Accommodation

Ground Floor

Hall, lounge, sitting room, study, kitchen/dining room, cloakroom, utility room

First Floor

Landing, bedroom with en-suite dressing room and bathroom, three further bedrooms, family bathroom

Second Floor

Master bedroom suite with en-suite shower room

Outside

Front garden with large drive area. Sheltered rear garden in need of landscaping.

Council Tax Band

To be reassessed

Viewing

Open viewings are arranged and the next are on Monday 29 April. To book an apointment please call the Norwich office.

Services

Interested parties are requested to make their own enquiries to the relevant authorities as to the availability of services.

Local Authority

North Norfolk District Council

Solicitors

Spire Solicitors LLP (Attleborough), Ref: Julie Crowder-Barr, Tel: 01953 453143

Important Notice to Prospective Buyers:

We draw your attention to the Special Conditions of Sale within the Legal Pack, referring to other charges in addition to the purchase price which may become payable. Such costs may include Search Fees, reimbursement of Sellers costs and Legal Fees, and Transfer Fees amongst others.

Additional Fees

Buyer's Premium - £720 inc VAT payable on exchange of contracts.

Administration Charge - 0.3% inc VAT of the purchase price, subject to a minimum of £1200 inc VAT, payable on exchange of contracts.

Disbursements - Please see the legal pack for any disbursements listed that may become payable by the purchaser on completion.

View Larger Map

Disclaimer: The map preview provided above is for general guidance only and may not accurately reflect the exact location or surrounding buildings. Prospective buyers and interested parties are strongly advised to independently verify the precise location and surroundings before bidding.