Withdrawn | Lot 30

14,15 Market Place, 1 Market Street, Whittlesey, Peterborough, Cambridgeshire PE7 1AB

Withdrawn

  • Mixed Use
  • Tenure: Freehold

Call the team on 01733 889833 for more information

Auction Date

Wed 01/05/2024

Auction Time

11:00

Auction Venue

Livestream Auction

A grade II listed freehold thatched property with a mixed use comprising two shops and two one bed flats providing an income of £31,200 pa.

This grade II listed property comprises an Osteopath, A Blind Shop and two one bedroom flats above. The property dates back to the seventeenth century and the current owner has maintained the property to a high standard. The investment currently provides a rental income of £31,200 pa. Whittlesey is located east of Peterborough and has shops and recreational facilities with a rail into Peterborough and March.

Tenure

Freehold

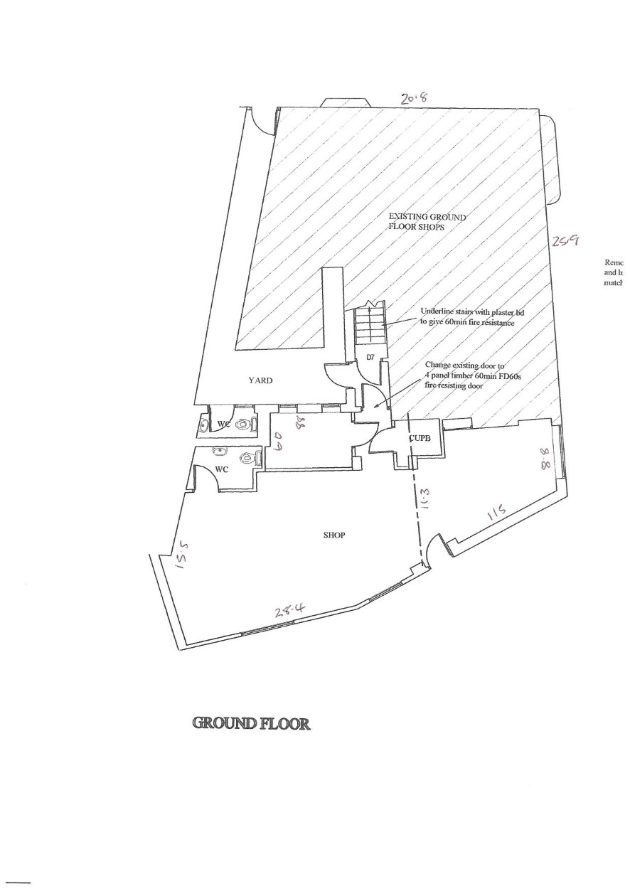
No 14 Osteopath

Shop, two treatment rooms, office and a W.C

No 15 Blinds in Harmony

Two shop areas kitchen and an external W.C.

Flat 1

Lounge/diner, bedroom with en-suite shower and a kitchen. The en-suite is at the other end of the bedroom not as shown on the floorplan.

Flat 2

Lounge/kitchen, shower room and a double bedroom.

Energy Efficiency Rating (EPC)

Current Rating E

Services

Interested parties are requested to make their own enquiries to the relevant authorities as to the availability of services.

Local Authority

Fenland District Council

Solicitors

22 Law, Ref: Claire Stanton, Tel: 0191 432 4408

Important Notice to Prospective Buyers:

We draw your attention to the Special Conditions of Sale within the Legal Pack, referring to other charges in addition to the purchase price which may become payable. Such costs may include Search Fees, reimbursement of Sellers costs and Legal Fees, and Transfer Fees amongst others.

Additional Fees

Buyer's Premium - £1200 inc VAT payable on exchange of contracts.

Administration Charge - 0.3% inc VAT of the purchase price, subject to a minimum of £1200 inc VAT, payable on exchange of contracts.

Disbursements - Please see the legal pack for any disbursements listed that may become payable by the purchaser on completion.

View Larger Map

Disclaimer: The map preview provided above is for general guidance only and may not accurately reflect the exact location or surrounding buildings. Prospective buyers and interested parties are strongly advised to independently verify the precise location and surroundings before bidding.