For Sale By Auction | 11:00, 01 May 2024 | Lot 29

38 & 38a Chesterton Road, Cambridge, Cambridgeshire CB4 1EN

Sold £176,000

  • Retail Property (high street)
  • Tenure: Freehold

Call the team on 01733 889833 for more information

Auction Date

Wed 01/05/2024

Auction Time

11:00

Auction Venue

Livestream Auction

A freehold retail shop in a busy shopping area offered with vacant possession on completion

This freehold premises was previously a private shop but is now offered with vacant possession. The property offers a shop area and an external w.c. The leasehold flat is on a 125 year lease assigned in 1998 but has been sold off and is currently paying £25 pa ground rent. The University of Cambridge famous for its colleges offers a variety of shopping and recreational facilities together with a main line rail link into London Liverpool Street and Kings Cross.

Tenure

Freehold

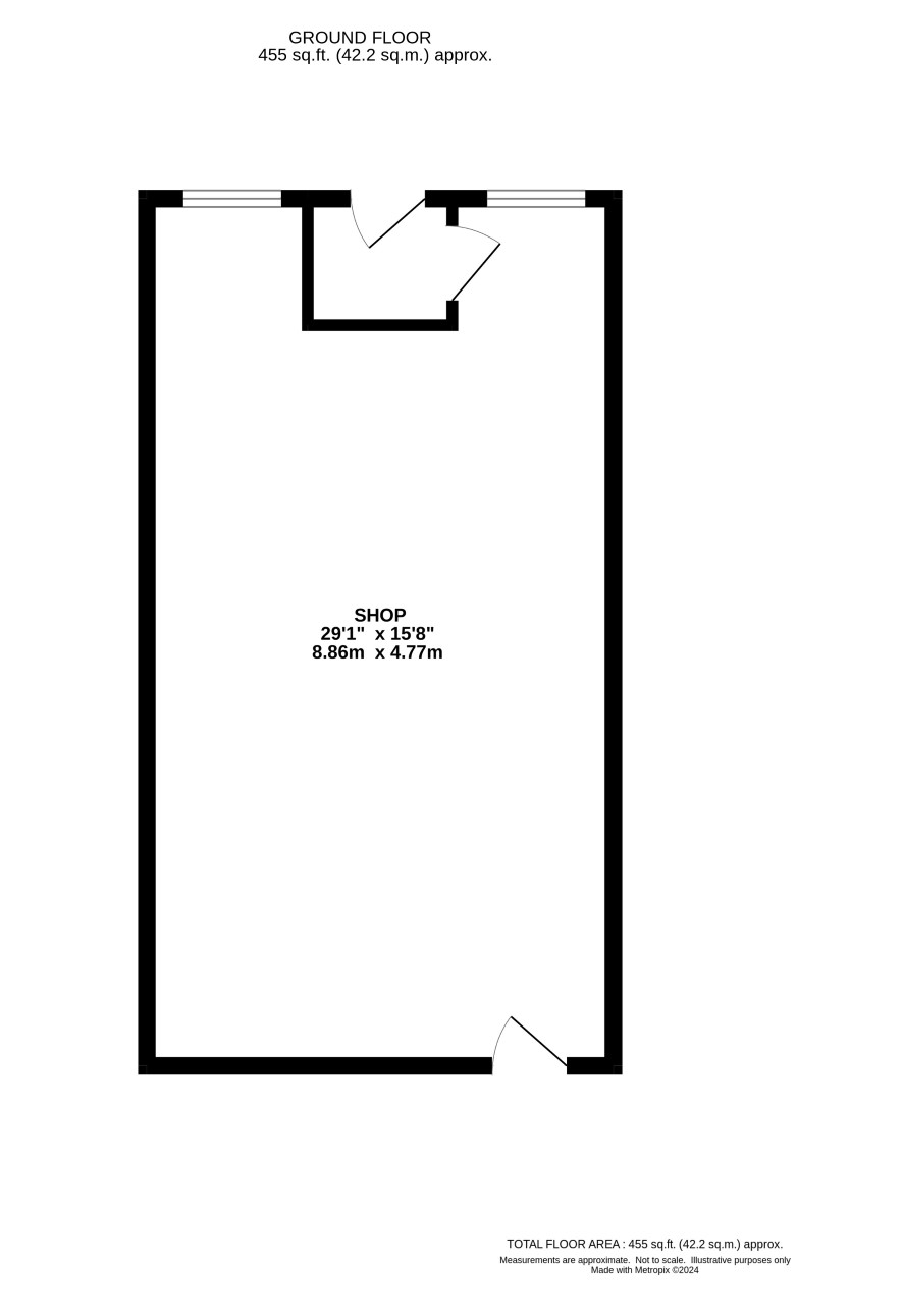
Shop

Shop area and an external w.c.

Flat

The flat has been sold off and are is 125 year leases assigned in 1998.

Buisiness Rates

According to the valuation office website the shop has a rateable value of £10,500 with effect from 1st April 2023.

Energy Efficiency Rating (EPC)

Current Rating B

Services

Interested parties are requested to make their own enquiries to the relevant authorities as to the availability of services.

Local Authority

Cambridge City Council

Solicitors

Shoosmiths (London), 1 Bow Churchyard, Ref: Joey Lee, Tel: 020 7282 4195

Offered in association with

Robinson Layer

Important Notice to Prospective Buyers:

We draw your attention to the Special Conditions of Sale within the Legal Pack, referring to other charges in addition to the purchase price which may become payable. Such costs may include Search Fees, reimbursement of Sellers costs and Legal Fees, and Transfer Fees amongst others.

Additional Fees

Buyer's Premium - £900 inc VAT payable on exchange of contracts.

Administration Charge - 0.3% inc VAT of the purchase price, subject to a minimum of £1200 inc VAT, payable on exchange of contracts.

Disbursements - Please see the legal pack for any disbursements listed that may become payable by the purchaser on completion.

View Larger Map

Disclaimer: The map preview provided above is for general guidance only and may not accurately reflect the exact location or surrounding buildings. Prospective buyers and interested parties are strongly advised to independently verify the precise location and surroundings before bidding.