For Sale By Auction | 11:00, 01 May 2024 | Lot 45

51 Sirdar Road, Ipswich, Suffolk IP1 2LD

Sold £135,000

  • Terraced House
  • 3 Bedrooms
  • Tenure: Freehold

Call the team on 01473 558 888 for more information

Auction Date

Wed 01/05/2024

Auction Time

11:00

Auction Venue

Livestream Auction

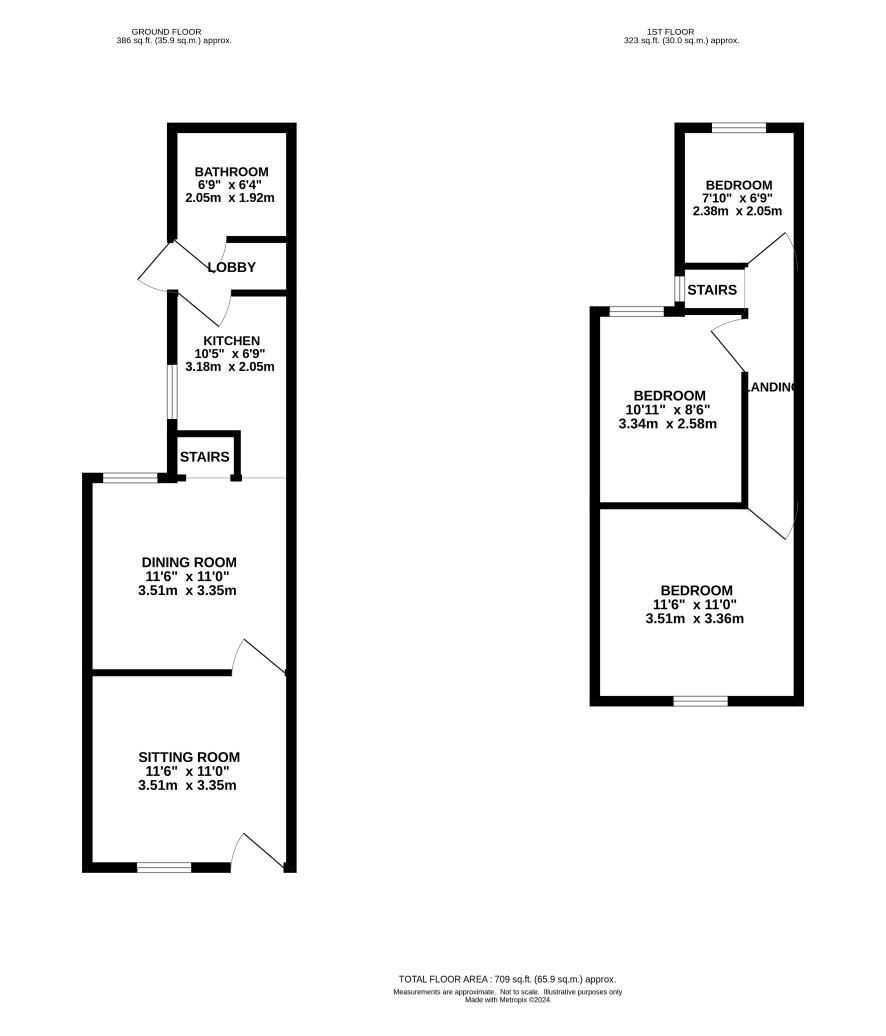
A well maintained three bedroom terraced house with parking

Situated to the west of the town centre is this Victorian terraced house which has been well maintained throughout. The property offers two reception room, three bedroom accommodation with gas central heating, double glazing and off road parking to the rear. The property is currently let to established tenants on a rolling Assured Shorthold Tenancy at a rent of £750 per calendar month (£9,000 per annum). With an annual gross yield of over 8% based on the low Guide Price we believe this to be a first class investment opportunity.

Tenure

Freehold

Council Tax band

A

Viewing

Open Viewing has been scheduled as follows: Wednesday 10th April at 2.00pm Monday 15th April at 3.00pm Wednesday 24th April at 2.00pm BOOKING AN APPOINTMENT IS ESSENTIAL Please call 01473 558888 to confirm your attendance.

Energy Efficiency Rating (EPC)

Current Rating D

Services

Interested parties are requested to make their own enquiries to the relevant authorities as to the availability of services.

Local Authority

Ipswich Borough Council

Solicitors

Kerseys Solicitors, Ref: Oliver Brookes, Tel: 01473 407121

Important Notice to Prospective Buyers:

We draw your attention to the Special Conditions of Sale within the Legal Pack, referring to other charges in addition to the purchase price which may become payable. Such costs may include Search Fees, reimbursement of Sellers costs and Legal Fees, and Transfer Fees amongst others.

Additional Fees

Buyer's Premium - £1140 inc VAT payable on exchange of contracts.

Administration Charge - 0.3% inc VAT of the purchase price, subject to a minimum of £1200 inc VAT, payable on exchange of contracts.

Disbursements - Please see the legal pack for any disbursements listed that may become payable by the purchaser on completion.

View Larger Map

Disclaimer: The map preview provided above is for general guidance only and may not accurately reflect the exact location or surrounding buildings. Prospective buyers and interested parties are strongly advised to independently verify the precise location and surroundings before bidding.