For Sale By Auction | 10:00, 12 June 2024 | Lot Available - post auction

The Old Manor House, The Street, Long Stratton, Norwich, Norfolk NR15 2XJ

*Guide | £210,000 (plus fees)

  • Manor House
  • 3 Bedrooms
  • Tenure: Freehold

Call the team on 01603 505 100 for more information

Auction Date

Wed 12/06/2024

Auction Time

10:00

Auction Venue

Livestream Auction

Substantial three bedroom Grade II Listed village house in good decorative order

This is a spacious recently refurbished three bedroom Grade II Listed property extending to around 1,900 sq/ft. It has electric and oil fired central heating and a wealth of period features including exposed beams and open fire places. There is off road parking and a garden to the rear. It is located in the village centre opposite the Co-op and has further scope to extend or develop the second floor, subject to the necessary consents. There is a scheme in place ta build a new village bypass.

Tenure

Freehold

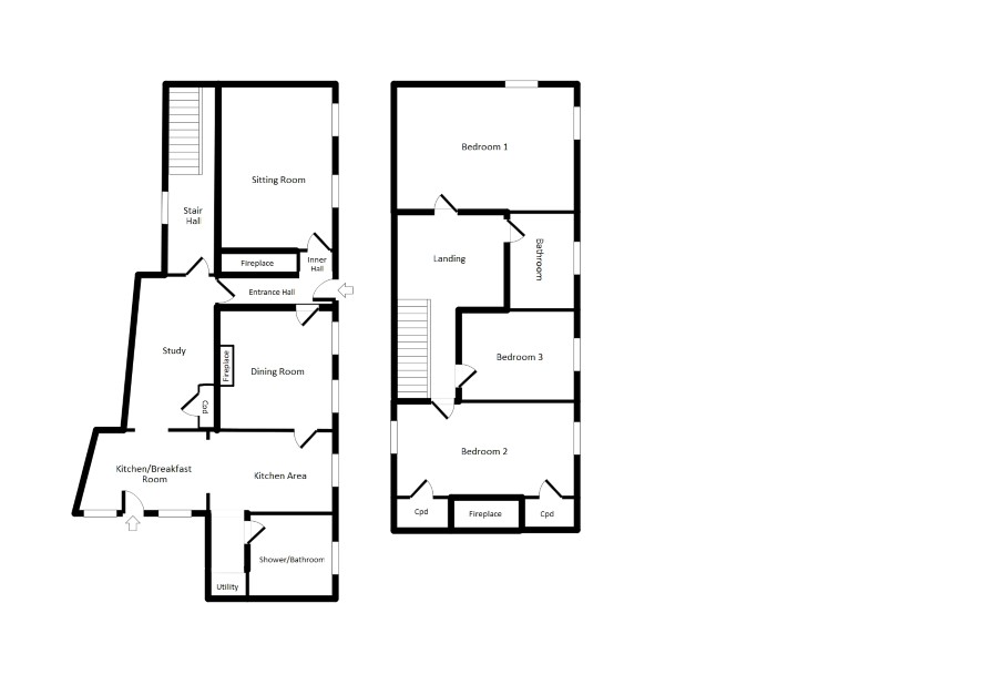
Ground Floor

Entrance hall, inner hall, sitting room, dining room, study, kitchen / breakfast room, shower / bathroom, stair hall

First Floor

Landing, three bedrooms, bathroom

Outside

Vehicular drive serving down to the car parking area and garden to the rear. The access drive also serves the adjoining outbuildings together with an area of meadowland to the rear.

Viewings

Viewings can be arranged by appointment. Please call the Norwich office to make an appointment.

Energy Efficiency Rating (EPC)

Current Rating C

Services

Interested parties are requested to make their own enquiries to the relevant authorities as to the availability of services.

Local Authority

South Norfolk Council

Solicitors

Juliet Bellis & Co, Ref: Juliet Bellis, Tel: 01957 733226

Offered in association with

Martin Smith Partnership

Important Notice to Prospective Buyers:

We draw your attention to the Special Conditions of Sale within the Legal Pack, referring to other charges in addition to the purchase price which may become payable. Such costs may include Search Fees, reimbursement of Sellers costs and Legal Fees, and Transfer Fees amongst others.

Additional Fees

Buyer's Premium - £900 inc VAT payable on exchange of contracts.

Administration Charge - 0.3% inc VAT of the purchase price, subject to a minimum of £1200 inc VAT, payable on exchange of contracts.

Disbursements - Please see the legal pack for any disbursements listed that may become payable by the purchaser on completion.

View Larger Map

Disclaimer: The map preview provided above is for general guidance only and may not accurately reflect the exact location or surrounding buildings. Prospective buyers and interested parties are strongly advised to independently verify the precise location and surroundings before bidding.