Withdrawn

Land at Chestnut Tree Farm, Denham Road, Hoxne, Suffolk IP21 5DB

Withdrawn

  • Land
  • Tenure: Freehold

Call the team on 01473 558 888 for more information

Auction Date

Wed 12/06/2024

Auction Time

10:00

Auction Venue

Livestream Auction

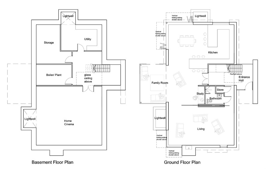
2.49 acres (stms) building plot with planning permission for a detached six bedroom property and garage located in the village of Denham.

Generous plot of 2.49acres (stms), with planning consent for development of a grand designs style six bedroom house (Reference DC/18/00297). The property plans feature a home cinema, a large family kitchen area, 6 bedrooms, 4 en-suites plus a detached garage with a studio/study. The plot is set in the village of Hoxne, just a 10 minute drive from the town of Eye where you'll find local amenities, cafes and restaurants. This home will really be a one of a kind set in a stunning rural location.

Tenure

Freehold

Services

Interested parties are requested to make their own enquiries to the relevant authorities as to the availability of services.

Local Authority

Mid Suffolk District Council

Solicitors

Ashtons Legal (Norwich), Ref: Simon Parker, Tel: 01603 703070

Important Notice to Prospective Buyers:

We draw your attention to the Special Conditions of Sale within the Legal Pack, referring to other charges in addition to the purchase price which may become payable. Such costs may include Search Fees, reimbursement of Sellers costs and Legal Fees, and Transfer Fees amongst others.

Additional Fees

Buyer's Premium - £1140 inc VAT payable on exchange of contracts.

Administration Charge - £1200 inc VAT payable on exchange of contracts.

Disbursements - Please see the legal pack for any disbursements listed that may become payable by the purchaser on completion.

View Larger Map

Disclaimer: The map preview provided above is for general guidance only and may not accurately reflect the exact location or surrounding buildings. Prospective buyers and interested parties are strongly advised to independently verify the precise location and surroundings before bidding.