For Sale By Auction | 10:00, 12 June 2024 | Lot 13

14 Ketts Close, Hethersett, Norwich, Norfolk NR9 3JF

Sold £160,000

  • Semi-Detached House
  • 3 Bedrooms
  • Tenure: Freehold

Call the team on 01603 505 100 for more information

Auction Date

Wed 12/06/2024

Auction Time

10:00

Auction Venue

Livestream Auction

Vacant three bedroom semi detached house with large garden now requiring improvement

This semi detached ex local authority house is now vacant and in need of updating and redecoration. The property does have double glazing and gas fired central heating and benefits from a large garden with potential off road parking (subject to obtaining permission for and installing a dropped kerb) and potential for further extension (subject to planning approval). The house is ideal for a builder, investor or for family occupation. The house is located in a quiet cul-de-sac within the popular village of Hethersett which boasts well respected schools, a useful range of shops and community facilities.

Tenure

Freehold

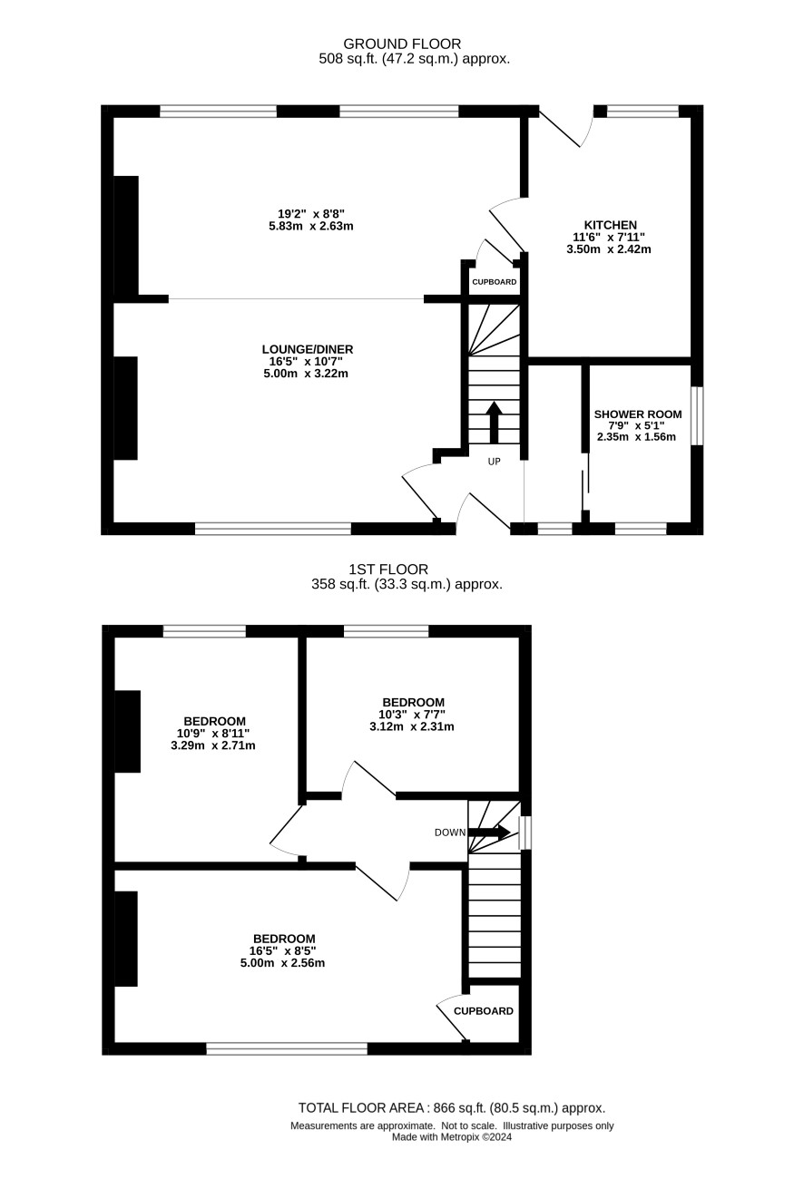
Ground Floor

Entrance hall, open plan lounge/diner, kitchen, shower room

First Floor

Landing, three bedrooms

Outside

Front garden with potential space for off road parking, large rear garden

Council Tax Band

B

Viewings

Viewings are being arranged by appointment only and the next ones are on Thursday 6 June. Please contact the Norwich office to arrange an appointment.

Energy Efficiency Rating (EPC)

Current Rating C

Services

Interested parties are requested to make their own enquiries to the relevant authorities as to the availability of services.

Local Authority

South Norfolk Council

Solicitors

Howes Percival (Norwich), Ref: Sally Rackham, Tel: 01603 284250

Important Notice to Prospective Buyers:

We draw your attention to the Special Conditions of Sale within the Legal Pack, referring to other charges in addition to the purchase price which may become payable. Such costs may include Search Fees, reimbursement of Sellers costs and Legal Fees, and Transfer Fees amongst others.

Additional Fees

Buyer's Premium - £900 inc VAT payable on exchange of contracts.

Administration Charge - 0.3% inc VAT of the purchase price, subject to a minimum of £1200 inc VAT, payable on exchange of contracts.

Disbursements - Please see the legal pack for any disbursements listed that may become payable by the purchaser on completion.

View Larger Map

Disclaimer: The map preview provided above is for general guidance only and may not accurately reflect the exact location or surrounding buildings. Prospective buyers and interested parties are strongly advised to independently verify the precise location and surroundings before bidding.