For Sale By Auction | 10:00, 12 June 2024 | Lot 12

44 Vicarage Road, Norwich, Norfolk NR3 2HB

Sold £166,000

  • Terraced House
  • 3 Bedrooms
  • Tenure: Freehold

Call the team on 01603 505 100 for more information

Auction Date

Wed 12/06/2024

Auction Time

10:00

Auction Venue

Livestream Auction

An unmodernised terrace house now requiring refurbishment

This three bedroom mid terrace house is now vacant and in need of a program of updating and redecoration to realise its full potential. The property would ideally suit the builder or investor being in a convenient north city location close to amenities and shops. The property has sealed unit double glazing, some individual gas fires and small front and rear gardens. Once modernised the property would be ideal for First Time Buyers or for investment.

Tenure

Freehold

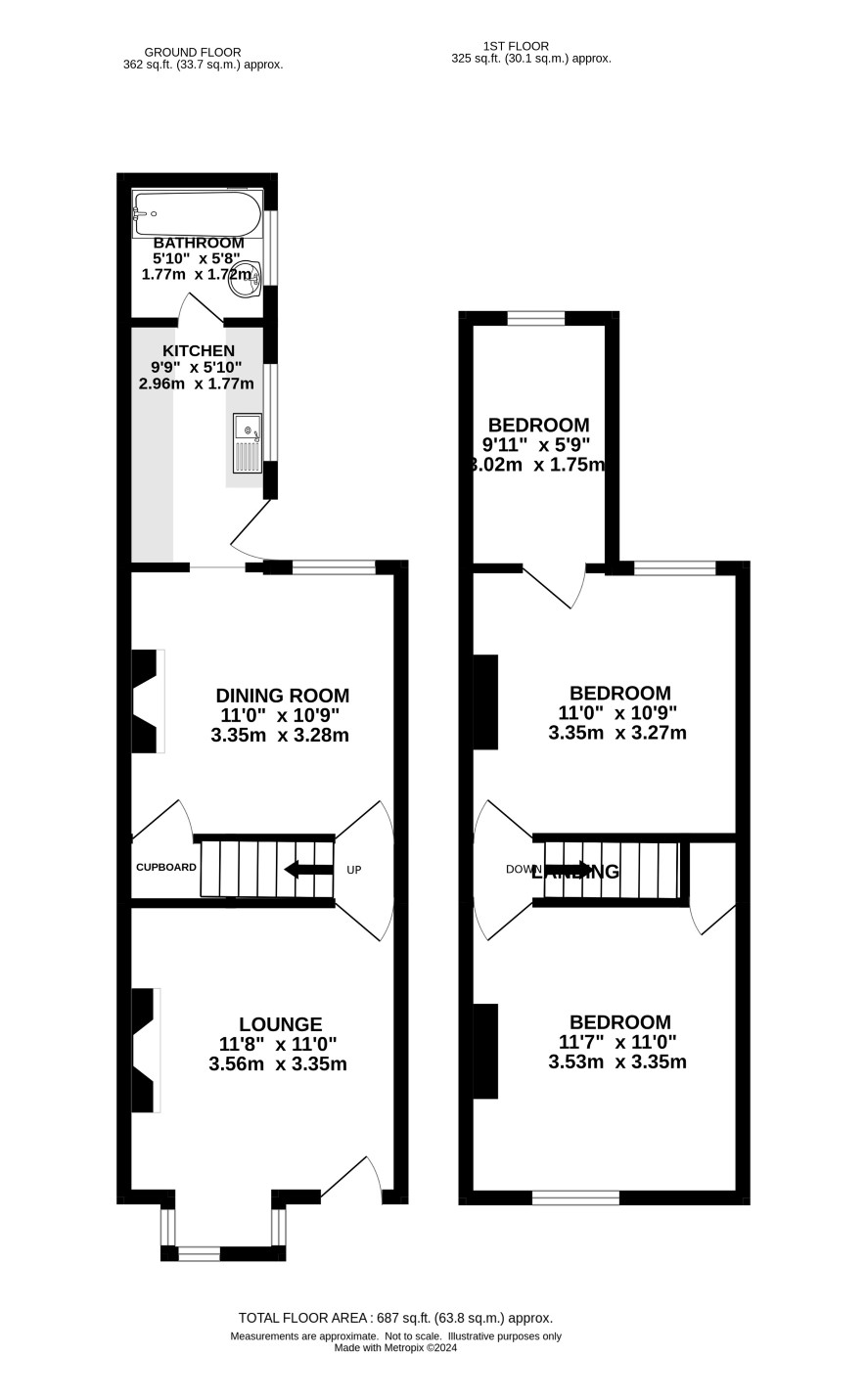
Ground Floor

Lounge, dining room, kitchen, bathroom

First Floor

Small landing, three bedrooms

Outside

Small front and rear gardens also in need of attention

Council Tax Band

B

Viewings

Viewings are being arranged and the next is Friday 7th June Please contact the Norwich office to book an appointment

Energy Efficiency Rating (EPC)

Current Rating E

Services

Interested parties are requested to make their own enquiries to the relevant authorities as to the availability of services.

Local Authority

Norwich City Council

Solicitors

Emin Read Solicitors, Ref: Andre Granditsch, Tel: 0202 88927576

Offered in association with

Normove

Important Notice to Prospective Buyers:

We draw your attention to the Special Conditions of Sale within the Legal Pack, referring to other charges in addition to the purchase price which may become payable. Such costs may include Search Fees, reimbursement of Sellers costs and Legal Fees, and Transfer Fees amongst others.

Additional Fees

Buyer's Premium - £600 inc VAT payable on exchange of contracts.

Administration Charge - 0.3% inc VAT of the purchase price, subject to a minimum of £1200 inc VAT, payable on exchange of contracts.

Disbursements - Please see the legal pack for any disbursements listed that may become payable by the purchaser on completion.

View Larger Map

Disclaimer: The map preview provided above is for general guidance only and may not accurately reflect the exact location or surrounding buildings. Prospective buyers and interested parties are strongly advised to independently verify the precise location and surroundings before bidding.