For Sale By Auction | 10:00, 12 June 2024 | Lot 88

17b Wide Bargate, Boston, Lincolnshire PE21 6SR

*Guide | £245,000 (plus fees)

  • Commercial Property
  • Tenure: Freehold

Call the team on 01733 889833 for more information

Auction Date

Wed 12/06/2024

Auction Time

10:00

Auction Venue

Livestream Auction

A commercial office currently tenanted by the DVSA with rear and first floor undeveloped accommodation

This commercial centre is currently used as a centre for the Driver and Vehicle Standards Agency located in the centre of Boston with a current rental income of £22,500 pa. The property has an un-developed area to the rear and on the first floor ideal for conversion subject to planning permission to create further space. Boston offers a variety of shopping and recreational facilities together with a rail link.

Tenure

Freehold

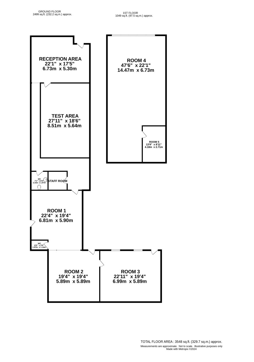
Ground Floor

Reception area, test area, staff room and a W.C. further three undeveloped rooms, w.c.

First Floor

Large room and an office

Outside

Rear access via locked gate.

Rateable Value

According to the Valuation office website the shop and premises has a rateable value of £22,500 with effect from 1 April 2023.

Energy Efficiency Rating (EPC)

Current Rating E

Services

Interested parties are requested to make their own enquiries to the relevant authorities as to the availability of services.

Local Authority

Boston Borough Council

Solicitors

Gosschalks, Ref: Alicia Wedgwood, Tel: 01482 590172

Important Notice to Prospective Buyers:

We draw your attention to the Special Conditions of Sale within the Legal Pack, referring to other charges in addition to the purchase price which may become payable. Such costs may include Search Fees, reimbursement of Sellers costs and Legal Fees, and Transfer Fees amongst others.

Additional Fees

Buyer's Premium - £1200 inc VAT payable on exchange of contracts.

Administration Charge - 0.3% inc VAT of the purchase price, subject to a minimum of £1200 inc VAT, payable on exchange of contracts.

Disbursements - Please see the legal pack for any disbursements listed that may become payable by the purchaser on completion.

View Larger Map

Disclaimer: The map preview provided above is for general guidance only and may not accurately reflect the exact location or surrounding buildings. Prospective buyers and interested parties are strongly advised to independently verify the precise location and surroundings before bidding.