For Sale By Auction | 11:00, 24 July 2024 | Lot Available Post Auction

Electra House, 31 & 32 Southtown Road, Great Yarmouth, Norfolk NR31 0DU

*Guide | £300,000 - £350,000 (plus fees)

  • Commercial Property
  • Tenure: Freehold

Call the team on 01603 505 100 for more information

Auction Date

Wed 24/07/2024

Auction Time

11:00

Auction Venue

Livestream Auction

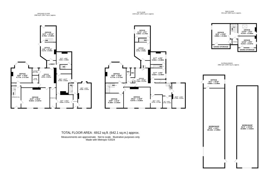
Two Grade II Listed properties with two large industrial workshops/storage both measuring over 18 meters long.

The properties would suit future office use or possible conversion to residential subject to all the necessary planning and other consents. Attractive front elevations - Electra House, No. 32 Southtown Road having been occupied until recently has a range of well-proportioned front and rear rooms and most recently used as offices, stores and ancillary staff rooms on both the ground and first floor with a second floor level most recently used for storage. The buildings provide a total net floor area of approximately 6912 sq ft. No. 31 is in a “Shell" condition with various rooms. Vehicular access from the rear and accessed from Lichfield Road with large parking area and two large industrial workshops/storage both measuring over 18 meters long.

Tenure

Freehold

31 Southtown Road

On the ground floor there are five room/store rooms and the same on the first floor

32 Southtown Road

On the ground floor there are five offices, WC facilities and kitchen area. The 1st floor has four offices, two store rooms and W.C. facilities and 2nd floor has three store rooms.

Outside

Large frontage providing off road parking and rear access with ample parking and two industrial workshops/storage rooms both over 18 meter long with pedestrian access and roller shutter doors.

Services

Mains water, electricity and drainage are connected to No. 32

Two Freehold interests

The business rate assessments are: No. 31 - Rateable Value £8,400 No. 32 - Rateable Value £15,000

Note

We understand that VAT will not be applicable

Viewing

Individual viewings are being arranged and the next is on Friday 19 July. Please call the Norwich Office to book an appointment.

Energy Efficiency Rating (EPC)

Current Rating No.32 E

Services

Interested parties are requested to make their own enquiries to the relevant authorities as to the availability of services.

Local Authority

Great Yarmouth Borough Council

Solicitors

Leathes Prior (The Close), Ref: Rebecca Millard, Tel: 01603 610911

Important Notice to Prospective Buyers:

We draw your attention to the Special Conditions of Sale within the Legal Pack, referring to other charges in addition to the purchase price which may become payable. Such costs may include Search Fees, reimbursement of Sellers costs and Legal Fees, and Transfer Fees amongst others.

Additional Fees

Buyer's Premium - £600 inc VAT payable on exchange of contracts.

Administration Charge - 0.3% inc VAT of the purchase price, subject to a minimum of £1200 inc VAT, payable on exchange of contracts.

Disbursements - Please see the legal pack for any disbursements listed that may become payable by the purchaser on completion.

View Larger Map

Disclaimer: The map preview provided above is for general guidance only and may not accurately reflect the exact location or surrounding buildings. Prospective buyers and interested parties are strongly advised to independently verify the precise location and surroundings before bidding.