For Sale By Auction | 11:00, 24 July 2024 | Lot 69

37-39 Norwich Road, Wisbech, Cambridgeshire PE13 2AD

Sold £60,000

  • Residential Development
  • Tenure: Freehold

Call the team on 01553 777 773 for more information

Auction Date

Wed 24/07/2024

Auction Time

11:00

Auction Venue

Livestream Auction

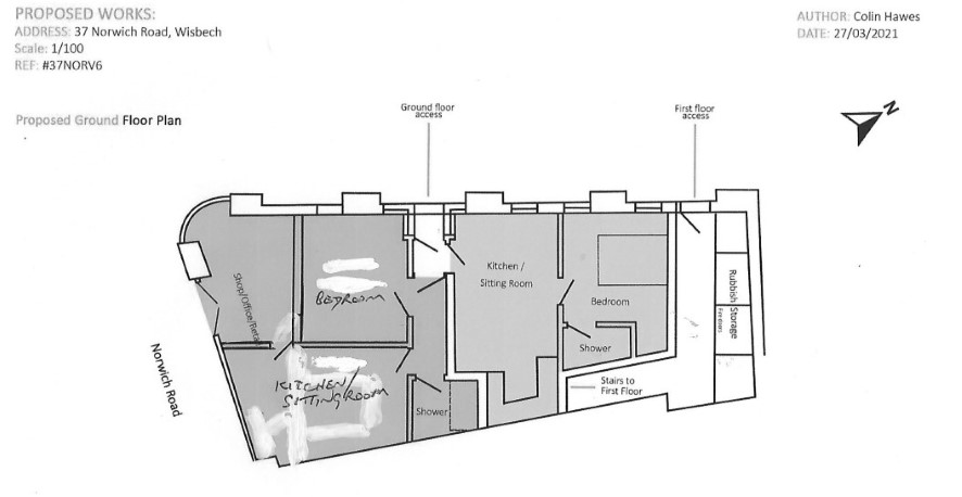
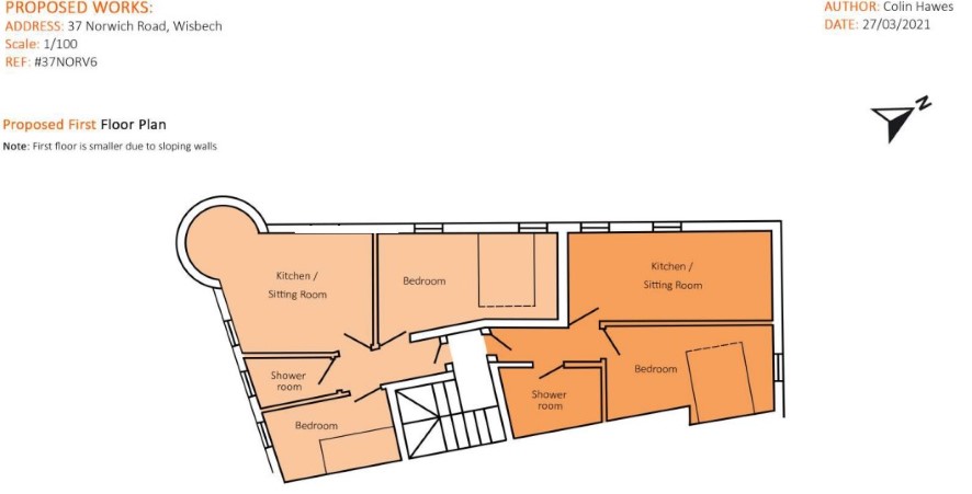
Conversion of retail unit to four flats (comprising of 1 x 2-beds, 2 x 1-bed & 1 x 1- bed/workplace home)

The retail unit is located in a mainly residential area within walking distance of the town centre and was originally built as a supermarket but most recently used as a funeral directors. The building currently has some stud walling in place from the previous occupant, but is more or less a shell, there is currently no first floor. Planning was granted by Fenland District council on 24th September 2021 with information available on their website with reference F/YR21/0400/F, for the conversion of retail unit to four flats (comprising of 1 x 2-beds, 2 x 1-bed & 1 x 1-bed/workplace home)

Tenure

Freehold

Conversion of retail unit to four flats (comprising of 1 x 2-beds, 2 x 1-bed & 1 x 1- bed/workplace home)

Energy Efficiency Rating (EPC)

Current Rating Please refer to Legal Pack

Services

Interested parties are requested to make their own enquiries to the relevant authorities as to the availability of services.

Local Authority

Fenland District Council

Solicitors

22 Law, Ref: Claire Stanton, Tel: 0191 432 4408

Important Notice to Prospective Buyers:

We draw your attention to the Special Conditions of Sale within the Legal Pack, referring to other charges in addition to the purchase price which may become payable. Such costs may include Search Fees, reimbursement of Sellers costs and Legal Fees, and Transfer Fees amongst others.

Additional Fees

Buyer's Premium - £1200 inc VAT payable on exchange of contracts.

Administration Charge - 0.3% inc VAT of the purchase price, subject to a minimum of £1200 inc VAT, payable on exchange of contracts.

Disbursements - Please see the legal pack for any disbursements listed that may become payable by the purchaser on completion.

View Larger Map

Disclaimer: The map preview provided above is for general guidance only and may not accurately reflect the exact location or surrounding buildings. Prospective buyers and interested parties are strongly advised to independently verify the precise location and surroundings before bidding.