For Sale By Auction | 11:00, 11 September 2024 | Lot 15

39 Adderley, Bretton, Peterborough, Cambridgeshire PE3 8RA

Sold £161,500

  • Terraced House
  • 3 Bedrooms
  • Tenure: Freehold

Call the team on 01733 889833 for more information

Auction Date

Wed 11/09/2024

Auction Time

11:00

Auction Venue

Livestream Auction

A 3 bedrooms terraced house

A three bedroom terraced house in Bretton with a potential rental income of £1000 pcm ideal for a landlord investor with a garage in block. This three bedroom terraced house would be a good investment with a potential rental income of £12,000 pa and comes with a garage in block which is currently let at £60 pcm. The house offers a lounge, kitchen and w.c. on the ground floor with three bedrooms and a bathroom on the first floor. There is a garden at rear and a garage in block. Bretton offers local facilities with more extensive facilities found in the city together with a main line rail link into London Kings Cross.

Tenure

Freehold

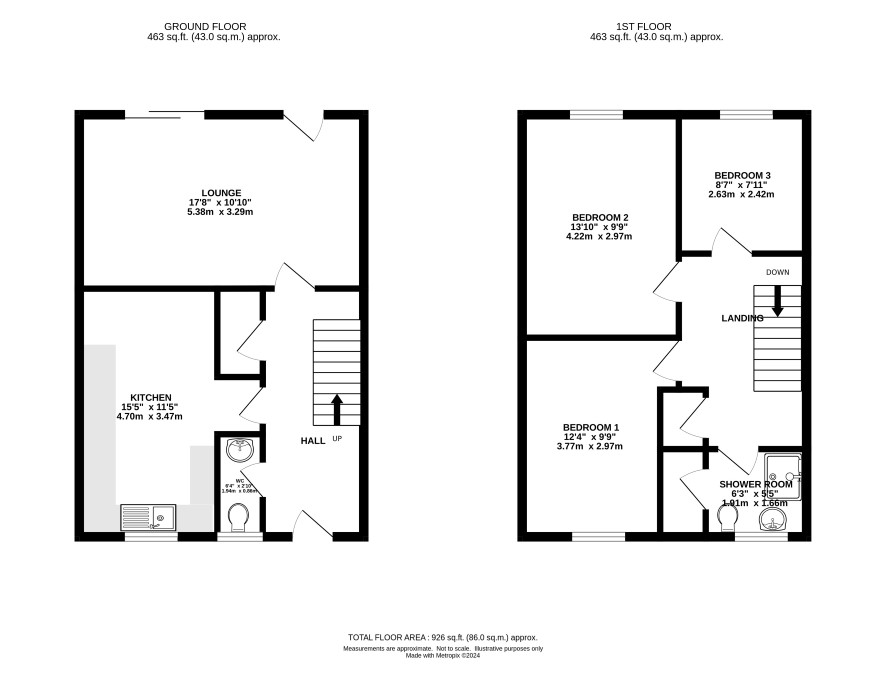
Ground Floor

Hall, wc, lounge and a kitchenette

First Floor

Landing, three bedrooms and a shower room

Outside

Garden at rear and a garage in block

Energy Efficiency Rating (EPC)

Current Rating C

Services

Interested parties are requested to make their own enquiries to the relevant authorities as to the availability of services.

Local Authority

Peterborough City Council

Solicitors

22 Law, Ref: Claire Stanton, Tel: 0191 432 4408

Important Notice to Prospective Buyers:

We draw your attention to the Special Conditions of Sale within the Legal Pack, referring to other charges in addition to the purchase price which may become payable. Such costs may include Search Fees, reimbursement of Sellers costs and Legal Fees, and Transfer Fees amongst others.

Additional Fees

Buyer's Premium - £1200 inc VAT payable on exchange of contracts.

Administration Charge - 0.3% inc VAT of the purchase price, subject to a minimum of £1200 inc VAT, payable on exchange of contracts.

Disbursements - Please see the legal pack for any disbursements listed that may become payable by the purchaser on completion.

View Larger Map

Disclaimer: The map preview provided above is for general guidance only and may not accurately reflect the exact location or surrounding buildings. Prospective buyers and interested parties are strongly advised to independently verify the precise location and surroundings before bidding.