Sold Prior | Lot 67

Barn off Newport Road, South Walsham, Norwich, Norfolk NR13 6DS

Sold Prior

  • Barn
  • Tenure: Freehold

Call the team on 01603 505 100 for more information

Auction Date

Wed 11/09/2024

Auction Time

11:00

Auction Venue

Livestream Auction

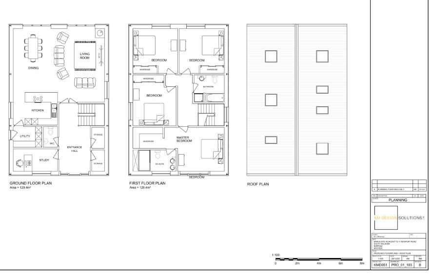
Detached barn with permission to convert into a 2,750 sq/ft four bedroom residential dwelling

A unique and exciting opportunity to acquire a former agricultural steel frame barn measuring around 14 x 9m situated on the edge of the Norfolk broads with beautiful countryside views to the rear. The barn extends to around 126 sq/m (1,356 sq/ft) and has permission to convert into a four residential dwelling. It is set in 0.2 of an acre with existing driveway access already in place, and is located around a mile south of South Walsham and nine miles east of Norwich.

Tenure

Freehold

Nutrient Nutrality

Purchasers should make their own enquiries of the relevant authorities regarding adhering to nutrient neutrality rules.

Planning

Notification for prior approval was approved by Broadland District Council on 10th May 2024 for change of use and associated building works of an agricultural building to a dwelling house (QA and QB). Reference: 2024/0001. Further details and plans can be found on the public access website of Broadland District Council broadland.gov.uk/planning.

Note

Please would all interested parties register their interest with the Auctioneer in order that they may be kept up to date with any developments.

Viewings

Any reasonable time during daylight hours or we are at the property on Monday, 5th August for internal viewing of the barn. Please call the office to arrange an appointment. Prospective purchasers should note that no liability can be held against either the vendor or the Agents, Auction House East Anglia as Auctioneers, in respect of any viewing of the land. All persons viewing should be aware that they enter the site entirely at their own risk.

Services

There are no services currently connected to the barn, however it is next to residential property on both sides and so services are nearby.

Proposed Accommodation

Ground floor: entrance hall, study, utility, kitchen / living / dining room First floor: landing, four bedrooms of which one ensuite, bathroom

Services

Interested parties are requested to make their own enquiries to the relevant authorities as to the availability of services.

Local Authority

Broadland District Council

Solicitors

Gullands Solicitors, Ref: Alan Williams, Tel: 01622 678341

Important Notice to Prospective Buyers:

We draw your attention to the Special Conditions of Sale within the Legal Pack, referring to other charges in addition to the purchase price which may become payable. Such costs may include Search Fees, reimbursement of Sellers costs and Legal Fees, and Transfer Fees amongst others.

Additional Fees

Administration Charge - 0.3% inc VAT of the purchase price, subject to a minimum of £1200 inc VAT, payable on exchange of contracts.

Disbursements - Please see the legal pack for any disbursements listed that may become payable by the purchaser on completion.

View Larger Map

Disclaimer: The map preview provided above is for general guidance only and may not accurately reflect the exact location or surrounding buildings. Prospective buyers and interested parties are strongly advised to independently verify the precise location and surroundings before bidding.