Postponed | Lot 74

16 Mole Drove, Gedney Hill, Spalding, Lincolnshire PE12 0PB

Postponed

  • Semi-Detached House
  • 2 Bedrooms
  • Tenure: Freehold

Call the team on 01733 889833 for more information

Auction Date

Wed 11/09/2024

Auction Time

11:00

Auction Venue

Livestream Auction

A two bedroom semi detached cottage in need of renovation set within a rural location offered with vacant possession

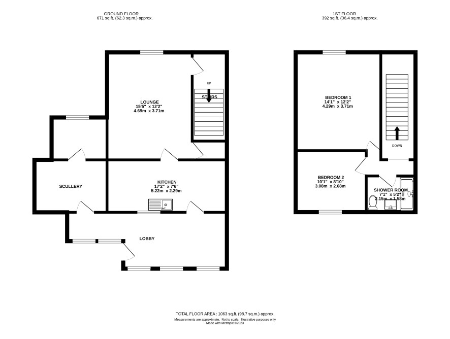
This two bedroom cottage is in a very rural location and is in need of major renovation with a large former cattle shed to the side. The accommodation includes a lounge, kitchen, scullery and further room, with two bedrooms and a shower room on the first floor. Outside provides parking and a large outbuilding and gardens. The property has had some electrical works carried out recently. Details will be with the legal pack. Gedney Hill is located nine miles from Spalding and Holbeach both offering facilities with a Station at Spalding.

Tenure

Freehold

Ground Floor

Hall, lounge, kitchen, scullery and further room.

First Floor

Landing, two bedrooms, loft room accessed from bed one and a bathroom

Outside

Gardens and a large outbuilding 19'1 ft X 35'4 ft.

Council Tax

C

Energy Efficiency Rating (EPC)

Current Rating F

Services

Interested parties are requested to make their own enquiries to the relevant authorities as to the availability of services.

Local Authority

South Holland District Council

Solicitors

Roythornes Solicitors (Pinchbeck), Ref: Rebecca Whittaker

Important Notice to Prospective Buyers:

We draw your attention to the Special Conditions of Sale within the Legal Pack, referring to other charges in addition to the purchase price which may become payable. Such costs may include Search Fees, reimbursement of Sellers costs and Legal Fees, and Transfer Fees amongst others.

Additional Fees

Buyer's Premium - £1200 inc VAT payable on exchange of contracts.

Administration Charge - 0.3% inc VAT of the purchase price, subject to a minimum of £1200 inc VAT, payable on exchange of contracts.

Disbursements - Please see the legal pack for any disbursements listed that may become payable by the purchaser on completion.

View Larger Map

Disclaimer: The map preview provided above is for general guidance only and may not accurately reflect the exact location or surrounding buildings. Prospective buyers and interested parties are strongly advised to independently verify the precise location and surroundings before bidding.