For Sale By Auction | 11:00, 11 September 2024 | Lot 86

34 Christchurch Street, Cambridge, Cambridgeshire CB1 1HT

*Guide | £225,000 - £250,000 (plus fees)

  • Flat
  • 1 Bedroom
  • Tenure: Leasehold.

Call the team on 01733 889833 for more information

Auction Date

Wed 11/09/2024

Auction Time

11:00

Auction Venue

Livestream Auction

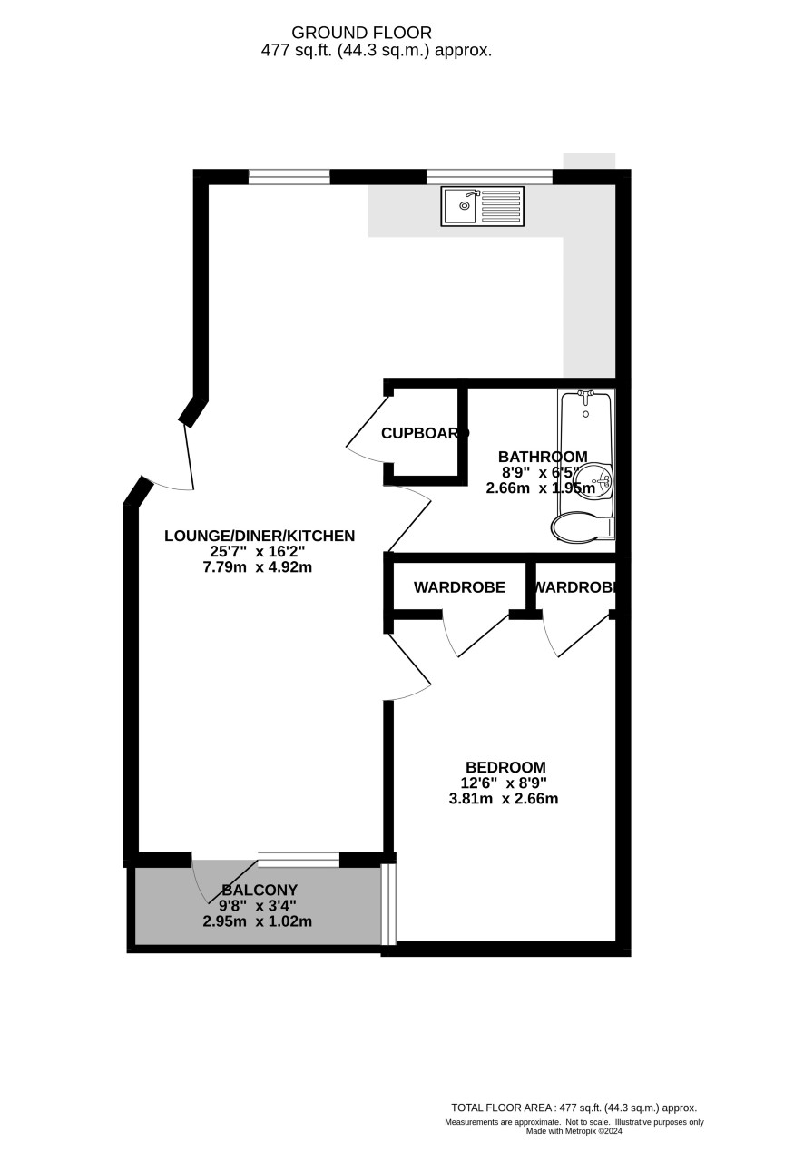
One bedroom 2nd floor apartment located behind the Grafton Centre in Cambridge.

A one bedroom apartment in the heart of Cambridge ideal for a buy to let investor or owner occupier within easy walking distance to Cambridge City Centre. The property benefits from its own front door on the 2nd floor with views over the church and the Cambridge roof tops. Internally the property has a open plan lounge/dining/kitchen leading to a terrace. A double bedroom and a bathroom. Outside there is a brick built storage shed.

Tenure

Leasehold.

Accommodation

Lounge, dining area, kitchen, bedroom, bathroom, balcony

Outside

Large brick built storage shed

Energy Efficiency Rating (EPC)

Current Rating D

Services

Interested parties are requested to make their own enquiries to the relevant authorities as to the availability of services.

Local Authority

Cambridge City Council

Solicitors

Leathes Prior (The Close), Ref: Rachael Hughes, Tel: 01603 281187

Important Notice to Prospective Buyers:

We draw your attention to the Special Conditions of Sale within the Legal Pack, referring to other charges in addition to the purchase price which may become payable. Such costs may include Search Fees, reimbursement of Sellers costs and Legal Fees, and Transfer Fees amongst others.

Additional Fees

Buyer's Premium - £1200 inc VAT payable on exchange of contracts.

Administration Charge - 0.3% inc VAT of the purchase price, subject to a minimum of £1200 inc VAT, payable on exchange of contracts.

Disbursements - Please see the legal pack for any disbursements listed that may become payable by the purchaser on completion.

View Larger Map

Disclaimer: The map preview provided above is for general guidance only and may not accurately reflect the exact location or surrounding buildings. Prospective buyers and interested parties are strongly advised to independently verify the precise location and surroundings before bidding.