For Sale By Auction | 11:00, 11 September 2024 | Lot 124

13 Tolhouse Street, Great Yarmouth, Norfolk NR30 2SQ

*Guide | £100,000 - £120,000 (plus fees)

  • Terraced House
  • 3 Bedrooms
  • Tenure: Freehold

Call the team on 01603 505 100 for more information

Auction Date

Wed 11/09/2024

Auction Time

11:00

Auction Venue

Livestream Auction

Grade 11 listed three bedroom mid terrace.

This Grade II listed three storey three bedroom mid terrace property benefits from gas central heating and a range of period features such as window shutters and exposed beams. It is let to a long established tenant at £490 pcm (£5,880 pa).   It is situated just south of the town centre, close to a range of services and amenities. It requires some improvement to realise its full potential.

Tenure

Freehold

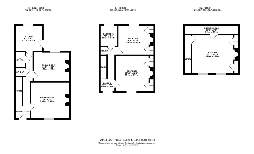
Lower Ground Floor

Cellar

Ground Floor

Entrance hall, sitting room, dining room, kitchen, WC

First Floor

Landing, bathroom, two bedrooms

Second Floor

Bedroom

Outside

Rear yard

Services

Interested parties are requested to make their own enquiries to the relevant authorities as to the availability of services.

Local Authority

Great Yarmouth Borough Council

Solicitors

Ward Gethin Archer (Dereham), Ref: Tracy Guest, Tel: 01362 852918

Important Notice to Prospective Buyers:

We draw your attention to the Special Conditions of Sale within the Legal Pack, referring to other charges in addition to the purchase price which may become payable. Such costs may include Search Fees, reimbursement of Sellers costs and Legal Fees, and Transfer Fees amongst others.

Additional Fees

Administration Charge - 0.3% inc VAT of the purchase price, subject to a minimum of £1200 inc VAT, payable on exchange of contracts.

Disbursements - Please see the legal pack for any disbursements listed that may become payable by the purchaser on completion.

View Larger Map

Disclaimer: The map preview provided above is for general guidance only and may not accurately reflect the exact location or surrounding buildings. Prospective buyers and interested parties are strongly advised to independently verify the precise location and surroundings before bidding.