Postponed | Lot 115

62 Churchgate Way, Terrington St. Clement, King's Lynn, Norfolk PE34 4LZ

Postponed

  • Detached House
  • 4 Bedrooms
  • Tenure: Freehold

Call the team on 01553 777 773 for more information

Auction Date

Wed 11/09/2024

Auction Time

11:00

Auction Venue

Livestream Auction

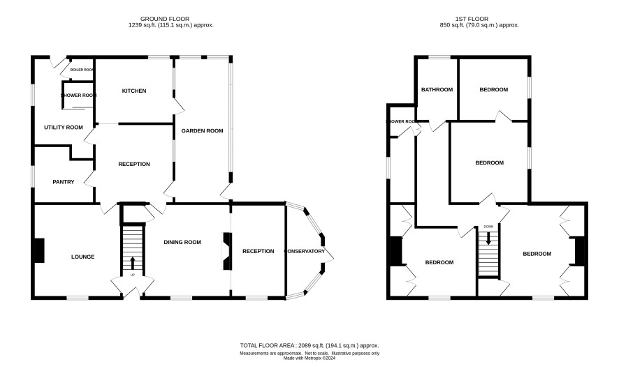
A four bedroom detached house with outbuildings standing on a plot of approximately 0.28 acres (stms)

This detached property offers potential with not only the renovation of the house, but also the space to the side with three large outbuildings accessed directly off the road and is available with vacant possession. This substantial detached period property situated adjacent to the church in Terrrington St Clement, retains many period features. The accommodation briefly comprises two front reception rooms, conservatory, dining room, garden room, pantry, kitchen, utility and shower room all on the ground floor. On the first floor there are three double bedrooms, a box room, a further room and family bathroom. Externally there is a workshop, two double garages and a further building. A viewing is highly recommended to appreciate the potential of this property and outbuildings.

Tenure

Freehold

Ground Floor

Four reception rooms, kitchen, pantry, utility and shower room

First Floor

Four bedrooms, further room and family bathroom

Outside

Outbuildings and off road parking

Council Tax Band

A

Energy Efficiency Rating (EPC)

Current Rating D

Services

Interested parties are requested to make their own enquiries to the relevant authorities as to the availability of services.

Local Authority

Kings Lynn and West Norfolk Borough Council

Solicitors

Hayes and Storr (Kings Lynn), Ref: Melanie Robson, Tel: 01553 778908

Important Notice to Prospective Buyers:

We draw your attention to the Special Conditions of Sale within the Legal Pack, referring to other charges in addition to the purchase price which may become payable. Such costs may include Search Fees, reimbursement of Sellers costs and Legal Fees, and Transfer Fees amongst others.

Additional Fees

Buyer's Premium - £1200 inc VAT payable on exchange of contracts.

Administration Charge - 0.3% inc VAT of the purchase price, subject to a minimum of £1200 inc VAT, payable on exchange of contracts.

Disbursements - Please see the legal pack for any disbursements listed that may become payable by the purchaser on completion.

View Larger Map

Disclaimer: The map preview provided above is for general guidance only and may not accurately reflect the exact location or surrounding buildings. Prospective buyers and interested parties are strongly advised to independently verify the precise location and surroundings before bidding.