Postponed | Lot 55

210-212 High Road, Benfleet, Essex SS7 5LD

Postponed

  • Retail Property (high street)
  • Tenure: Freehold

Call the team on 01702 939933 for more information

Auction Date

Wed 11/09/2024

Auction Time

11:00

Auction Venue

Livestream Auction

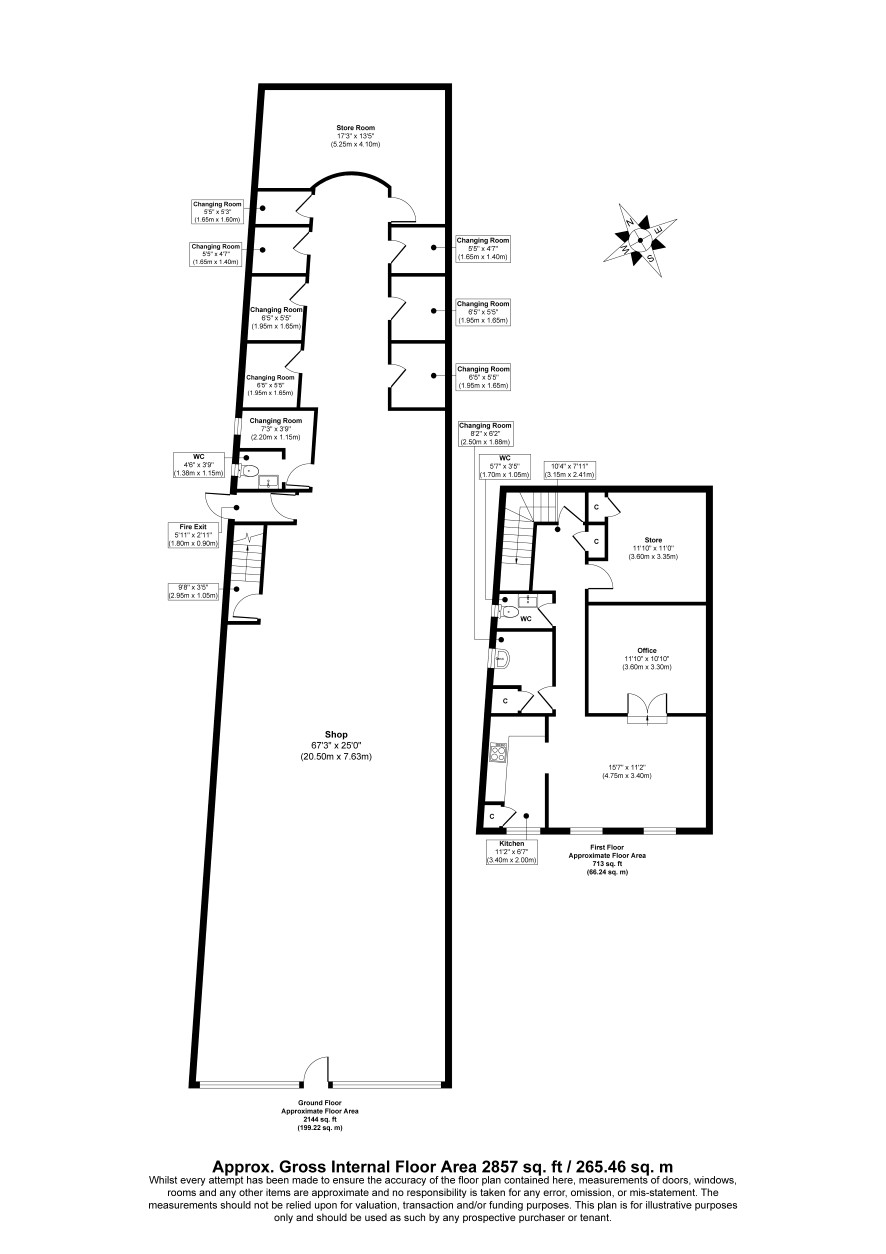
Substantial retail premises of nearly 2,400 sq ft in a popular trading location

The building is part single storey and part 2 storey. There are store rooms and offices to the first floor (formally a self contained flat) and storage behing the retail area. The property enjoys forecourt parking, and a driveway leading to a car park for a number of cars to the rear. The shop was until recently used a ladies fashion store but would suit many other uses (subject to all necessary consents).

Tenure

Freehold

Planning

Planning Permission was Granted by Castle Point Council on 17th March 2023 for conversion and extension to provide a retail shop and 4 self contained flats. Please note solicitors for the adjoining owners have written a letter objecting to the development, the letter is within the Legal Pack.

Viewings

Individual viewings can be arranged. Please call the Chelmsford Office on 01702 939933 to book an appointment.

Energy Efficiency Rating (EPC)

Current Rating C

Services

Interested parties are requested to make their own enquiries to the relevant authorities as to the availability of services.

Local Authority

Castle Point Borough Council

Solicitors

Jefferies Solicitors, Ref: Amelia Hayes, Tel: 01702 443478

Important Notice to Prospective Buyers:

We draw your attention to the Special Conditions of Sale within the Legal Pack, referring to other charges in addition to the purchase price which may become payable. Such costs may include Search Fees, reimbursement of Sellers costs and Legal Fees, and Transfer Fees amongst others.

Additional Fees

Buyer's Premium - £1200 inc VAT payable on exchange of contracts.

Administration Charge - 0.3% inc VAT of the purchase price, subject to a minimum of £1200 inc VAT, payable on exchange of contracts.

Disbursements - Please see the legal pack for any disbursements listed that may become payable by the purchaser on completion.

View Larger Map

Disclaimer: The map preview provided above is for general guidance only and may not accurately reflect the exact location or surrounding buildings. Prospective buyers and interested parties are strongly advised to independently verify the precise location and surroundings before bidding.