For Sale By Auction | 11:00, 11 September 2024 | Lot Available Post Auction

38 and 40 Turnpike Road, Red Lodge, Bury St. Edmunds, Suffolk IP28 8JZ

*Guide | £1,000,000 - £1,200,000 (plus fees)

  • Detached House
  • Tenure: Freehold

Call the team on 01473 558 888 for more information

Auction Date

Wed 11/09/2024

Auction Time

11:00

Auction Venue

Livestream Auction

A rare opportunity to acquire two substantial dwellings set in approximately 2.68acres (sts)

A rare opportunity to acquire two substantial dwellings set in approximately 2.68acres (sts). These two family homes are accessed via gated access, shared driveway and surrounded by mature gardens with both offering scope for further development subject to planning. Situated in Red Lodge, providing excellent transport links to Cambridge, Bury St Edmunds and Newmarket. 

Tenure

Freehold

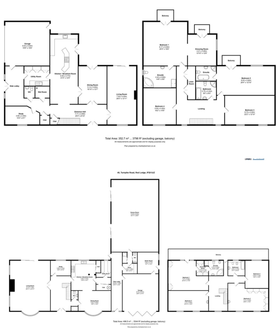
38 Turnpike Road, Red Lodge, IP28 8JZ

Features a large Kitchen/breakfast room, separate dining room, generous living room and study. There is also a wet room, utility room and WC on the ground floor and the property can be accessed from the double garage. Upstairs offers Master bedroom with its own large dressing room and balcony and en-suite bathroom. Bedroom two offers a balcony to the rear and ensuite bathroom. Two further double bedrooms and a family bathroom complete the first floor. Outside includes mature gardens mainly laid to lawn with hard standing driveway offering ample off road parking and double garage.

40 Turnpike Road, Red Lodge, IP28 8JZ

Requires modernisation throughout but offers a large Kitchen/breakfast room opening to separate dining room, living room with open fire, study, utility room and two downstairs cloakrooms. To the rear of this amazingly adaptable home welcome your friends & family into a huge games room, this space offers scope for a variety of uses or possible conversion subject to planning. Upstairs offers a Master bedroom with dressing room, en-suite and balcony to the rear. Three further double bedrooms and a family bathroom.

Energy Efficiency Rating (EPC)

Current Rating C

Services

Interested parties are requested to make their own enquiries to the relevant authorities as to the availability of services.

Local Authority

West Suffolk Council

Solicitors

Edmonson Hall, Ref: Edmonson Hall, Tel: 01638 560556

Offered in association with

Clarke Philips

Important Notice to Prospective Buyers:

We draw your attention to the Special Conditions of Sale within the Legal Pack, referring to other charges in addition to the purchase price which may become payable. Such costs may include Search Fees, reimbursement of Sellers costs and Legal Fees, and Transfer Fees amongst others.

Additional Fees

Buyer's Premium - £1800 inc VAT payable on exchange of contracts.

Administration Charge - £1200 inc VAT payable on exchange of contracts.

Disbursements - Please see the legal pack for any disbursements listed that may become payable by the purchaser on completion.

View Larger Map

Disclaimer: The map preview provided above is for general guidance only and may not accurately reflect the exact location or surrounding buildings. Prospective buyers and interested parties are strongly advised to independently verify the precise location and surroundings before bidding.