Postponed | Lot 76

End Cottage, St. Marks Road, Holbeach St. Marks, Holbeach, Spalding, Lincolnshire PE12 8DZ

Postponed

  • Detached House
  • 4 Bedrooms
  • Tenure: Freehold

Call the team on 01733 889833 for more information

Auction Date

Wed 11/09/2024

Auction Time

11:00

Auction Venue

Livestream Auction

A 4 bedroom detached cottage

A detached four bedroom former teachers house with a delightfull garden offered with vacant possession. This detached house offers two reception rooms kitchen, utility, conservatory, with four bedrooms and a bathroom on the first floor. Outside you can find a delightfull well stocked garden. The house had a programme of renovation in 1998. Holbeach St Marks is located north of Holbeach where you can find local facilities. 

Tenure

Freehold

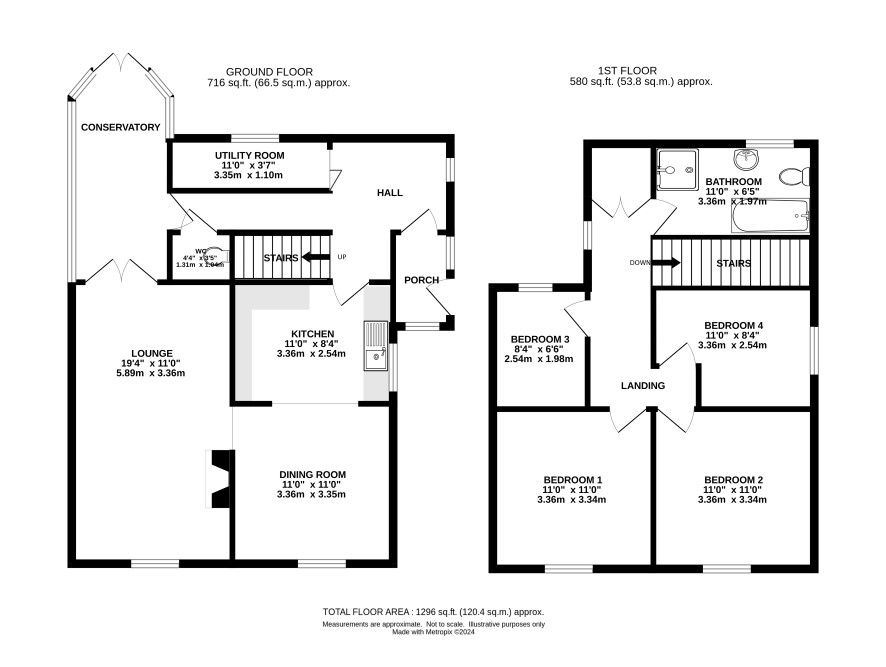
Ground Floor

Porch, Hall, Lounge, Dining Room, Kitchen, Utility and a Conservatory

First Floor

Landing, Four Bedrooms and a Bathroom

Outside

Parking to side. Garden at rear with a timber workshop

Energy Efficiency Rating (EPC)

Current Rating E

Services

Interested parties are requested to make their own enquiries to the relevant authorities as to the availability of services.

Local Authority

South Holland District Council

Solicitors

22 Law, 22 Front Street, Ref: 22 Law, Tel: 0191 488 4950

Important Notice to Prospective Buyers:

We draw your attention to the Special Conditions of Sale within the Legal Pack, referring to other charges in addition to the purchase price which may become payable. Such costs may include Search Fees, reimbursement of Sellers costs and Legal Fees, and Transfer Fees amongst others.

Additional Fees

Buyer's Premium - £1200 inc VAT payable on exchange of contracts.

Administration Charge - 0.3% inc VAT of the purchase price, subject to a minimum of £1200 inc VAT, payable on exchange of contracts.

Disbursements - Please see the legal pack for any disbursements listed that may become payable by the purchaser on completion.

View Larger Map

Disclaimer: The map preview provided above is for general guidance only and may not accurately reflect the exact location or surrounding buildings. Prospective buyers and interested parties are strongly advised to independently verify the precise location and surroundings before bidding.