For Sale By Auction | 11:00, 23 October 2024 | Lot AVAILABLE

34 Commercial Road, Dereham, Norfolk NR19 1AE

*Guide | £250,000 (plus fees)

  • Detached House
  • 5 Bedrooms
  • Tenure: Freehold

Call the team on 01603 505 100 for more information

Auction Date

Wed 23/10/2024

Auction Time

11:00

Auction Venue

Livestream Auction

Versatile vacant five bedroom detached property, can be HMO, one house or two flats

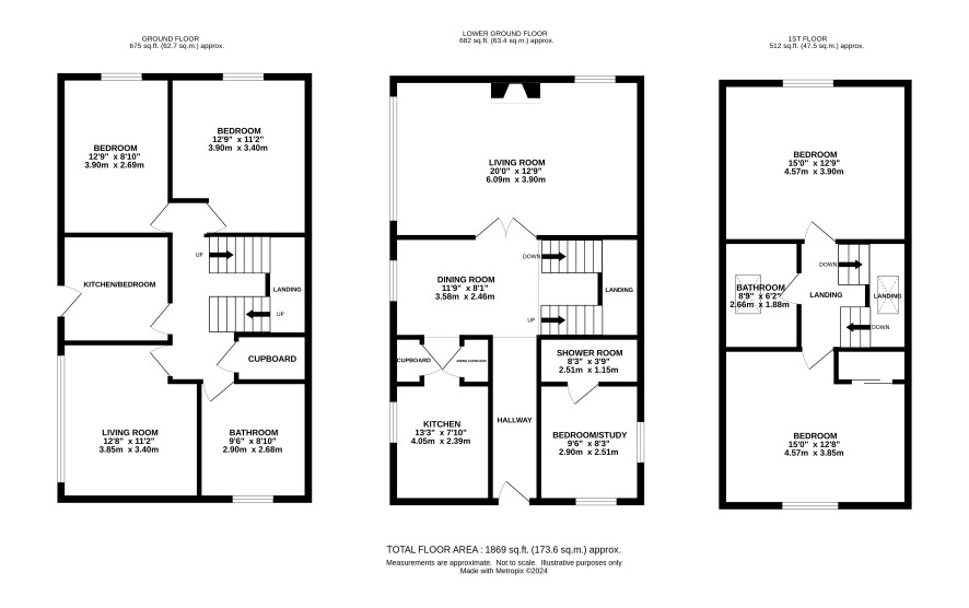
This large detached house has around 1,869 sq/ft of accommodation over three floors. It is located near the centre of the town close to a comprehensive range of services and amenities. It has been in the same ownership for nearly twenty five years and has a current HMO licence in 2023, lapsed consent for two flats in 2002 and can also be one house. It was last let at £1,650 pcm (£19,800 pa). It has been well maintained by the owners and benefits from off road parking, double glazing, gas fired central heating and solar panels installed on the roof in 2010 producing over £2,000 pa. Sold as seen to include white goods. It would be an ideal purchase for the owner occupier or investor.

Tenure

Freehold

Ground floor

Living room, two bedrooms, bathroom, walk in cupboard, kitchen

First floor

Entrance hall, kitchen, ensuite bedroom, dining room, living room

Second floor

Landing, two bedrooms, bathroom

Outside

Driveway providing off road parking for two cars at the rear, front and side garden area. The driveway allows access to no 32 to the rear of the property.

Council Tax Band

A

Viewings

Open viewings can be arranged. To book an appointment please call the Norwich office.

Energy Efficiency Rating (EPC)

Current Rating C

Services

Interested parties are requested to make their own enquiries to the relevant authorities as to the availability of services.

Local Authority

Breckland Council

Solicitors

Spire Solicitors LLP (Aylsham), Ref: Melissa Richards, Tel: 01263 732123

Important Notice to Prospective Buyers:

We draw your attention to the Special Conditions of Sale within the Legal Pack, referring to other charges in addition to the purchase price which may become payable. Such costs may include Search Fees, reimbursement of Sellers costs and Legal Fees, and Transfer Fees amongst others.

Additional Fees

Administration Charge - 0.3% inc VAT of the purchase price, subject to a minimum of £1200 inc VAT, payable on exchange of contracts.

Disbursements - Please see the legal pack for any disbursements listed that may become payable by the purchaser on completion.

View Larger Map

Disclaimer: The map preview provided above is for general guidance only and may not accurately reflect the exact location or surrounding buildings. Prospective buyers and interested parties are strongly advised to independently verify the precise location and surroundings before bidding.