For Sale By Auction | 11:00, 23 October 2024 | Lot 66

11 Woodside Industrial Park, Works Road, Letchworth Garden City, Hertfordshire SG6 1LA

*Guide | £240,000 - £270,000 (plus fees)

  • Light Industrial
  • Tenure: Leasehold. 999 years (less 10 days) from 25 December 1909

Call the team on 01733 889833 for more information

Auction Date

Wed 23/10/2024

Auction Time

11:00

Auction Venue

Livestream Auction

Commercial unit located within a popular industrial estate within the heart of the commercial district of Letchworth Garden City

The unit benefits from a balanced mixture of workshop and production space, offices, and storage with parking to the front and side and a loading area to the rear. All in all an ideal commercial base for any company looking for a mix of workshop and office space, with racked storage or could be a larger open plan workshop with offices. Alternatively this could be an investment opportunity to let out.

Tenure

Leasehold. 999 years (less 10 days) from 25 December 1909

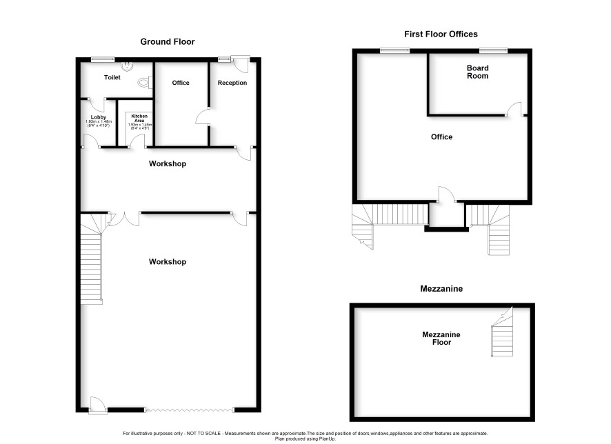
Ground Floor

About 664 sq.ft production area, about 209 sq. ft workshop space, front reception area, office, kitchen area and toilet facilities, roller shutter door to the rear delivery apron, fire exit and stairs to first floor offices and mezzanine storage area. Workshop 8.12m x 7.36m, workshop 7.36m x 2.65m, office 3.51m x 1.9m, reception 3.51m x 1.94m

First Floor

Offices and facilities room, landing stairs to mezzanine floor Board room 4.12m x 2.55m, office 7.31m x 6.28m

Mezzanine

About 361 sq.ft with railings to front and side 7.36m x 4.57m

Parking

4 allocated parking bays

VAT

Please note that VAT is applicable for this Lot.

Energy Efficiency Rating (EPC)

Current Rating F

Services

Interested parties are requested to make their own enquiries to the relevant authorities as to the availability of services.

Local Authority

North Hertfordshire District Council

Solicitors

Ward Gethin Archer (Dereham), Ref: Tracy Guest, Tel: 01362 852918

Offered in association with

Satchells Commercial

Important Notice to Prospective Buyers:

We draw your attention to the Special Conditions of Sale within the Legal Pack, referring to other charges in addition to the purchase price which may become payable. Such costs may include Search Fees, reimbursement of Sellers costs and Legal Fees, and Transfer Fees amongst others.

Additional Fees

Buyer's Premium - 1.2% inc VAT of the purchase price, payable on exchange of contracts.

Administration Charge - 0.3% inc VAT of the purchase price, subject to a minimum of £1200 inc VAT, payable on exchange of contracts.

Disbursements - Please see the legal pack for any disbursements listed that may become payable by the purchaser on completion.

View Larger Map

Disclaimer: The map preview provided above is for general guidance only and may not accurately reflect the exact location or surrounding buildings. Prospective buyers and interested parties are strongly advised to independently verify the precise location and surroundings before bidding.