Withdrawn | Lot 34

20 Maltings Drive, Harleston, Norfolk IP20 9EY

Withdrawn

  • Detached Bungalow
  • 2 Bedrooms
  • Tenure: Freehold

Call the team on 01603 505 100 for more information

Auction Date

Wed 12/02/2025

Auction Time

11:00

Auction Venue

Livestream Auction

Detached bungalow situated in a desirable residential area in Harleston town centre.

This detached bungalow is situated in a desirable residential area a short walk from the market town of Harleston. The property has been rented for the past 15 years and is now vacant. The bungalow is in very good order and would ideally suit an owner occupier or someone looking for a ready made buy to let. Accommodation offers two double bedrooms, a generous sitting room overlooking the garden and a modern kitchen and bathroom. Outside there is a drive providing parking for several cars and a single garage which has recently had improvements to bring to standard. There are also front and rear gardens and a couple of timber storage sheds. Viewing is strongly recommended.

Tenure

Freehold

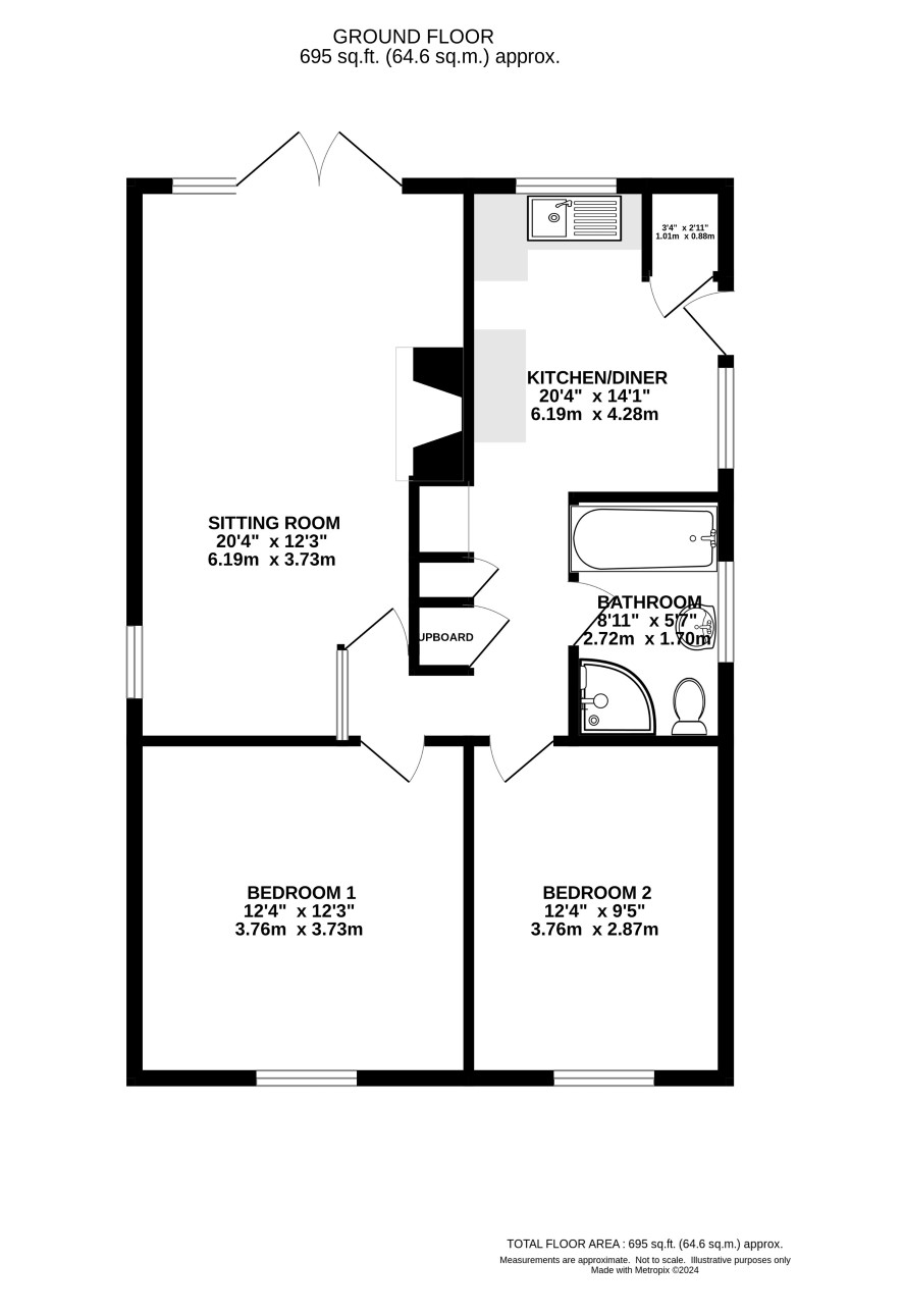
Accommodation

Kitchen/diner, sitting room, two double bedrooms and bathroom with separate shower.

Exterior

Driveway offering ample parking leads to a single garage, front and rear gardens with a couple of timber framed storage sheds.

Council Tax Band

C

Viewings

Viewings are being arranged by appointment only. The next opportunity to view is Wednesday 5th January Please contact the Norwich Office to book your appointment.

Energy Efficiency Rating (EPC)

Current Rating C

Services

Interested parties are requested to make their own enquiries to the relevant authorities as to the availability of services.

Local Authority

South Norfolk Council

Solicitors

Sprake & Kingsley, Ref: Anna Farquharson, Tel: 01986 892721

Important Notice to Prospective Buyers:

We draw your attention to the Special Conditions of Sale within the Legal Pack, referring to other charges in addition to the purchase price which may become payable. Such costs may include Search Fees, reimbursement of Sellers costs and Legal Fees, and Transfer Fees amongst others.

Additional Fees

Buyer's Premium - £960 inc VAT payable on exchange of contracts.

Administration Charge - £1200 inc VAT payable on exchange of contracts.

Disbursements - Please see the legal pack for any disbursements listed that may become payable by the purchaser on completion.

View Larger Map

Disclaimer: The map preview provided above is for general guidance only and may not accurately reflect the exact location or surrounding buildings. Prospective buyers and interested parties are strongly advised to independently verify the precise location and surroundings before bidding.