For Sale By Auction | 11:00, 12 February 2025 | Lot 36 - AVAILABLE POST AUCTION

33 Turin Street, Ipswich, Suffolk IP2 8DQ

*Guide | £110,000 - £130,000 (plus fees)

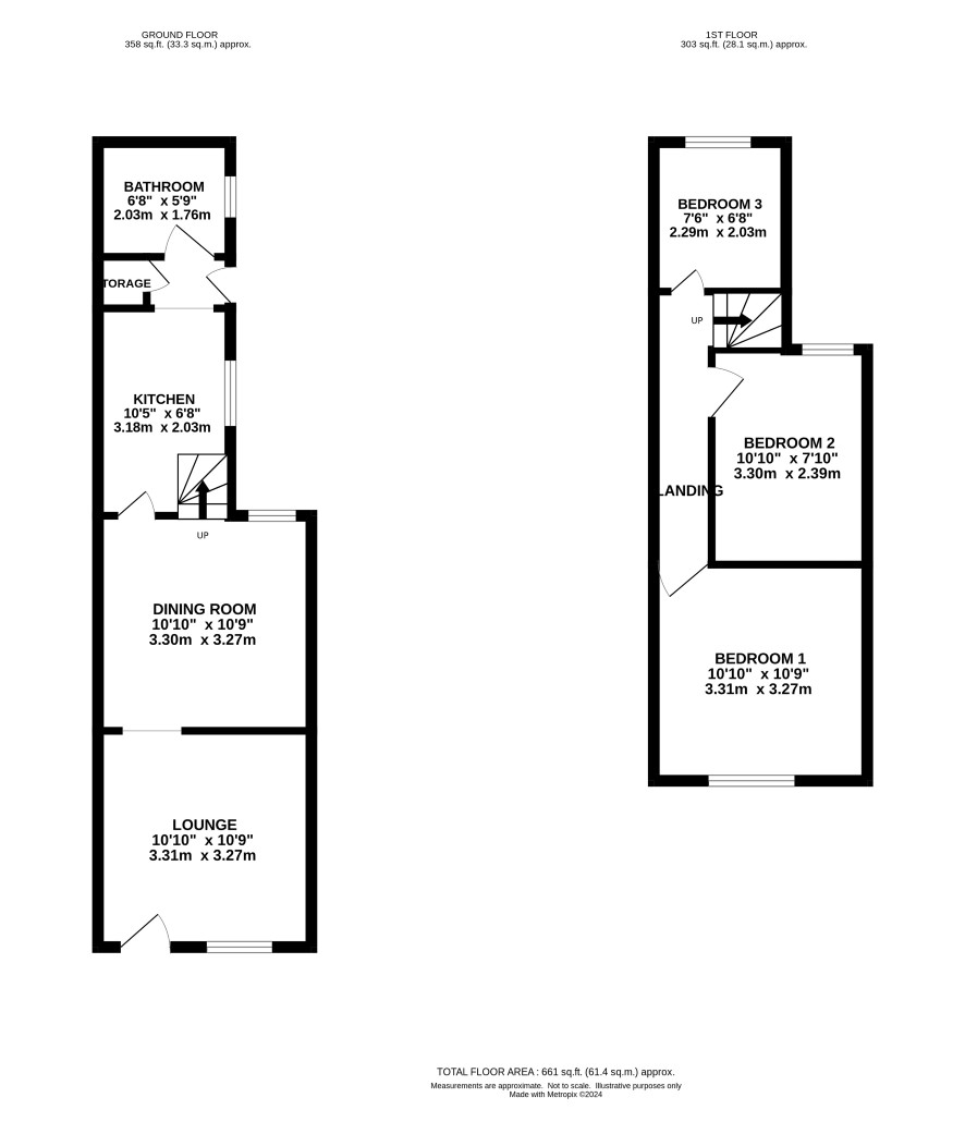
  • Terraced House
  • 3 Bedrooms
  • Tenure: Freehold

Call the team on 01473 558 888 for more information

Auction Date

Wed 12/02/2025

Auction Time

11:00

Auction Venue

Livestream Auction

Three bedroom tenanted property situated within walking distance to Ipswich town centre and train station.

This property features a lounge, dining room, kitchen, downstairs bathroom and three bedrooms as well as on road parking and a garden. The property currently has a long-term tenant under an AST, paying £510 per month. The rent is set to increase to £800 per month in April 2025, resulting in a rental yield of 7.4%. Located in the IP2 postcode, within walking distance to the town centre and train station with other local shops close by.

Tenure

Freehold

Council Tax Band

A

Energy Efficiency Rating (EPC)

Current Rating D

Services

Interested parties are requested to make their own enquiries to the relevant authorities as to the availability of services.

Local Authority

Ipswich Borough Council

Solicitors

Gudgeons Prentice Solicitors, Ref: Robert Jackson, Tel: 01449 613101

Important Notice to Prospective Buyers:

We draw your attention to the Special Conditions of Sale within the Legal Pack, referring to other charges in addition to the purchase price which may become payable. Such costs may include Search Fees, reimbursement of Sellers costs and Legal Fees, and Transfer Fees amongst others.

Additional Fees

Buyer's Premium - £1140 inc VAT payable on exchange of contracts.

Administration Charge - £1200 inc VAT payable on exchange of contracts.

Disbursements - Please see the legal pack for any disbursements listed that may become payable by the purchaser on completion.

View Larger Map

Disclaimer: The map preview provided above is for general guidance only and may not accurately reflect the exact location or surrounding buildings. Prospective buyers and interested parties are strongly advised to independently verify the precise location and surroundings before bidding.