Withdrawn | Lot 120

Model House, Wash Lane, Aslacton, Norwich, Norfolk NR15 2JR

Withdrawn

  • Detached House
  • 5 Bedrooms
  • Tenure: Freehold

Call the team on 01603 505 100 for more information

Auction Date

Wed 18/06/2025

Auction Time

10:00

Auction Venue

Livestream Auction

Substantial detached house situated within an acre (stms), in need of some modernisation offering over 2900 sq/ft of accommodation in the quiet Norfolk village of Aslacton

Model House is a substantial detached chalet situated in an established plot in the rural Norfolk village of Aslacton which lays south of Norwich. The property offers generous five bedroom accommodation of over 2900 sq/ft. It would benefit from some modernisation throughout however it is possible to reside in immediately. The house is approached via a large brickweave drive and has a integral double garage and is offered for sale with generous gardens approaching an acre (stms) including an area of mature woodland trees at the rear. This would ideally suit a large family looking for a project to put their own stamp on.

Tenure

Freehold

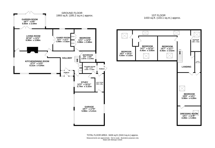
Ground floor

Entrance porch, hall, study, kitchen/diner, sitting room, games room, bedroom, bathroom, utility room, shower room, rear porch

First floor

Landing, master bedroom with ensuite and dressing room, three further bedrooms and family bathroom

Exterior

Approached via a generous brickweave drive this established plot stretches to approximately one acre (stms) and is laid to lawn screened by mature trees and planted with shrubs. There is also a timber summerhouse to sit and enjoy the garden from.

Council Tax Band

E

Viewings

Viewings are available by appointment only. To book a viewing please contact the Norwich office.

Require a Mortgage or Loan?

We strongly advise that your finance is fully approved prior to bidding. Please be aware that an Agreement in Principle (AIP) may not be sufficient. Should your lender be unable to proceed post-auction, you risk losing your deposit and incurring significant costs. To ensure you are fully prepared, contact our team today to discuss auction finance options and secure funding before bidding.

Energy Efficiency Rating (EPC)

Current Rating Please refer to Legal Pack

Services

Interested parties are requested to make their own enquiries to the relevant authorities as to the availability of services.

Local Authority

South Norfolk Council

Solicitors

Jackamans (Diss), Ref: Dan Hewitt, Tel: 01379 643555

Important Notice to Prospective Buyers:

We draw your attention to the Special Conditions of Sale within the Legal Pack, referring to other charges in addition to the purchase price which may become payable. Such costs may include Search Fees, reimbursement of Sellers costs and Legal Fees, and Transfer Fees amongst others.

Additional Fees

Buyer's Premium - £960 inc VAT payable on exchange of contracts.

Administration Charge - £1200 inc VAT payable on exchange of contracts.

Disbursements - Please see the legal pack for any disbursements listed that may become payable by the purchaser on completion.

View Larger Map

Disclaimer: The map preview provided above is for general guidance only and may not accurately reflect the exact location or surrounding buildings. Prospective buyers and interested parties are strongly advised to independently verify the precise location and surroundings before bidding.