Sold Prior | Lot 28

25 Havelock Street, Spalding, Lincolnshire PE11 2YL

Sold Prior

  • End of Terrace House
  • 2 Bedrooms
  • Tenure: Freehold

Call the team on 01733 889833 for more information

Auction Date

Wed 30/07/2025

Auction Time

10:00

Auction Venue

Livestream Auction

A end terraced two bedroom house ideal for an investor landlord with a potential rental income of £650 pcm.

This two bedroom three reception house has been extended at the rear to include a extra reception room with two bedrooms and a bathroom with separate shower cubicle on the first floor. The property has a private rear garden. The current owners have had a rental income from the asset with a potential rental income of £7,800 pa. Spalding offers a variety of shops and recreational facilities with a rail link providing access into Peterborough.

Tenure

Freehold

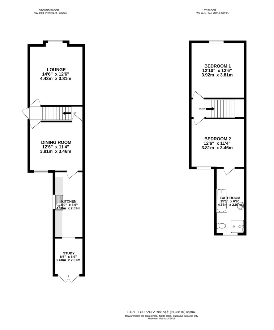
Ground Floor

Hall, lounge, dining room, study and a kitchen.

First floor

Two bedrooms and a bathroom. The bathroom is accessed via bedroom 2.

Outside

Rear garden.

Council Tax Band

B

Energy Efficiency Rating (EPC)

Current Rating D

Services

Interested parties are requested to make their own enquiries to the relevant authorities as to the availability of services.

Local Authority

South Holland District Council

Solicitors

Southern Stewart & Walker, Ref: Claire Stanton, Tel: 0191 4270770

Important Notice to Prospective Buyers:

We draw your attention to the Special Conditions of Sale within the Legal Pack, referring to other charges in addition to the purchase price which may become payable. Such costs may include Search Fees, reimbursement of Sellers costs and Legal Fees, and Transfer Fees amongst others.

Additional Fees

Buyer's Premium - £1200 inc VAT payable on exchange of contracts.

Administration Charge - £1200 inc VAT payable on exchange of contracts.

Disbursements - Please see the legal pack for any disbursements listed that may become payable by the purchaser on completion.

View Larger Map

Disclaimer: The map preview provided above is for general guidance only and may not accurately reflect the exact location or surrounding buildings. Prospective buyers and interested parties are strongly advised to independently verify the precise location and surroundings before bidding.