Withdrawn | Lot 30

Springfield, Twentypence Road, Wilburton, Ely, Cambridgeshire CB6 3PX

Withdrawn

  • Land
  • Tenure: Freehold

Call the team on 01733 889833 for more information

Auction Date

Wed 30/07/2025

Auction Time

10:00

Auction Venue

Livestream Auction

A rare opportunity to acquire a building plot with full planning for a large detached house set in 2.04 acres on the edge of the village.

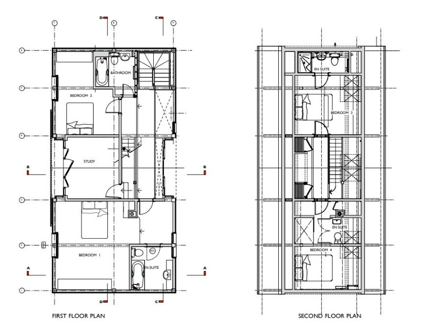
Springfield House has been demolished and the current owners have planning permission to erect a detached four bedroom 2,808 sq ft house on the 2.04 plot of land. The proposed house accommodation on three levels, includes a drawing room, dining room, sitting room, kitchen, study, utiity room, four bedrooms, three en-suites, study area and a family bathroom. The property is located in a very rural location. The planning permission is via East Cambs District Council ref 20/01269/FUL. The owners have retained the planning as they have demolished the former house on the site. The village of Wilburton offers local facilities with more extensive facilities found at Ely with its main line rail link into London Kings Cross.

Tenure

Freehold

Proposed Ground Floor

Hall, w.c. drawing room, dining room, sitting room, study, kitchen and a utility room.

Proposed first floor

Landing, master bedroom with en-suite, second bedroom, study area and a family bathroom.

Proposed second floor

Landing, two bedrooms both with en-suite facilities.

Outside

Proposed detached double garage with a room above. Total plot 2.04 acres.

Services

Interested parties are requested to make their own enquiries to the relevant authorities as to the availability of services.

Local Authority

East Cambridgeshire District Council

Solicitors

Fraser Dawbarns (March), Ref: Helen Jarvis, Tel: DD: 01354 607925

Important Notice to Prospective Buyers:

We draw your attention to the Special Conditions of Sale within the Legal Pack, referring to other charges in addition to the purchase price which may become payable. Such costs may include Search Fees, reimbursement of Sellers costs and Legal Fees, and Transfer Fees amongst others.

Additional Fees

Buyer's Premium - £1200 inc VAT payable on exchange of contracts.

Administration Charge - £1200 inc VAT payable on exchange of contracts.

Disbursements - Please see the legal pack for any disbursements listed that may become payable by the purchaser on completion.

View Larger Map

Disclaimer: The map preview provided above is for general guidance only and may not accurately reflect the exact location or surrounding buildings. Prospective buyers and interested parties are strongly advised to independently verify the precise location and surroundings before bidding.